XXL-Fotogalerie starten  
© Ralf Kuhn
Die robusten Rohrrahmentüren aus Aluminium werden besonders in öffentliche Bereichen und Verwaltungen als Bürotüren, für Zugänge und Flurabschlüsse eingesetzt.
23 XXL-Fotogalerie starten
Küffner Aluzargen GmbH & Co. OHG
Kutschenweg 12
76287 Rheinstetten
Deutschland
Tel. +49 721 51690
Fax +49 721 516940
INFORMATIONSANFRAGE  

Informationsanfrage zu Aluminium-Rahmentüren

Meine Kontaktdaten bearbeiten
Name:
Firma:
-
Branche:
Architekt:in/Planer:in
Adresse:
,
Telefon:
-
E-Mail:

*Pflichtfelder

Mit dem Absenden erkläre ich damit einverstanden, dass die Heinze GmbH meine Kontaktdaten und Bürodaten zum Kundenservice speichert und diese an den Empfänger übermittelt. Die Einwilligung kann ich jederzeit widerrufen. Näheres erläutert der Datenschutzhinweis.


PRODUKTINFORMATIONEN ZUM BEREICH "ALUMINIUM-RAHMENTÜREN"

Flächenbündige Rahmentüren für Block- und Umfassungszargen

Die schlanken Rahmentüren wurden passend zu Küffner-Aluminiumzargen entwickelt.

Ausführungen als ein- und zweiflügelige Türen, sturz- oder raumhohe Elemente mit Oberlicht oder Seitenteilverglasungen. Profildicken 42 und 55 mm.

Flächenbündige Aluminium-Rahmentür mit Seitenteil
Flächenbündige Aluminium-Rahmentür mit Seitenteil
  • Oberfläche: seidenglänzend eloxiert oder hochwertig pulverlackiert nach RAL-, DB- oder NCS-Farbskala.

  • Die Rahmenprofile nehmen Rohrrahmenschlösser und -drücker, Edelstahlrollenbänder oder verdeckte Bandsysteme und absenkbare Bodendichtungen für erhöhten Schallschutz auf.

  • Die Rahmenflügel lassen sich mit sämtlichen Aluzargen mit Falzabmessung für stumpf einschlagende Türen kombinieren.

  • Glasfüllungen: Sicherheitsglas wahlweise mit Klarglas, satiniert oder farbig transparent.

Küffner Aluminium - Rahmentür, eingepasst in historische Bausunstanz
Küffner Aluminium - Rahmentür, eingepasst in historische Bausunstanz
Küffner Aluminium-Rahmentür ART 55, Banddetail
Küffner Aluminium-Rahmentür ART 55, Banddetail
Küffner Aluminium - Rahmentür ART 55, Türdrücker und Schloss
Küffner Aluminium - Rahmentür ART 55, Türdrücker und Schloss
Küffner Aluminium - Rahmentür mit transluzenter Glasfüllung
Küffner Aluminium - Rahmentür mit transluzenter Glasfüllung

Details

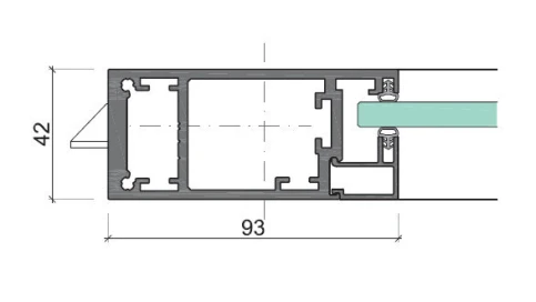
ART42 Aluminum-Rahmentür mit Dicke 42 mm, für Glasdicke 8 -10 mm
ART42 Aluminum-Rahmentür mit Dicke 42 mm, für Glasdicke 8 -10 mm
ART55 Aluminium-Rahmentür mit Dicke 55 mm, stumpf mit Leibungsfalz, für Glasdicke 6 -19 mm
ART55 Aluminium-Rahmentür mit Dicke 55 mm, stumpf mit Leibungsfalz, für Glasdicke 6 -19 mm

Einbaubeispiele, Elementaufteilungen

Rahmentür ART42

Küffner-Aluminium-Rahmentür Modell ART42 in 1- oder 2-fl g. Ausführung, Türblattdicke 42 mm mit Rohrrahmenprofilabmessung 93/42 mm inkl. Glasleisten und Glasanschlussdichtung, Türkante stumpf einschlagend, ohne Überschlagprofil, für Zargenfalztiefe 43 mm, Glasfüllung aus Sicherheitsglas ESG oder VSG mit Dicke 8 bis 10 mm oder Paneelfüllung, inkl. Schloss und Bandsystem.

Aluminium-Rahmentür ART42, einflügelig, mit Umfassungszarge EUROKS48
Aluminium-Rahmentür ART42, einflügelig, mit Umfassungszarge EUROKS48
Aluminium-Rahmentür ART42, einflügelig, mit Zargenprofi l KLS48 „schwimmend“ in Glaswand, mit verdecktem Bandsystem
Aluminium-Rahmentür ART42, einflügelig, mit Zargenprofi l KLS48 „schwimmend“ in Glaswand, mit verdecktem Bandsystem
Aluminium-Rahmentür ART42, zweiflügelig, mit wandbündiger Schattennutzarge USBV48-G und verdecktem Bandsystem
Aluminium-Rahmentür ART42, zweiflügelig, mit wandbündiger Schattennutzarge USBV48-G und verdecktem Bandsystem
Aluminium-Rahmentür ART42, zweiflügelig, mit Umfassungszarge URS48
Aluminium-Rahmentür ART42, zweiflügelig, mit Umfassungszarge URS48
Rahmentür ART55

Küffner-Aluminium-Rahmentür Modell ART55 in 1- oder 2-flg. Ausführung, Türblattdicke 55 mm mit Rohrrahmenprofilabmessung 90/55 mm inkl. Glasleisten15 mm und Glasanschlussdichtung, Türkante stumpf einschlagend mit Leibungsfalz, für flächenbündige Ausführung mit dem Zargenspiegel, ohne Überschlagprofil, für Zargenfalztiefe 43 mm, Glasfüllung aus Sicherheitsglas ESG oder VSG mit Dicke 6 bis 19 mm oder Paneelfüllung, inkl. Schloss und Bandsystem.

Aluminium-Rahmentür ART55, einflügelig, mit Blockzarge BS46 / KLS46 und separater Festverglasung
Aluminium-Rahmentür ART55, einflügelig, mit Blockzarge BS46 / KLS46 und separater Festverglasung
Aluminium-Rahmentür ART55, zweiflügelig, mit Zargenprofi l KLS46 mit Leibungsverkleidung, bandgegenseitig flächenbündig mit verdecktem Bandsystem
Aluminium-Rahmentür ART55, zweiflügelig, mit Zargenprofi l KLS46 mit Leibungsverkleidung, bandgegenseitig flächenbündig mit verdecktem Bandsystem
Aluminium-Rahmentür ART55, einflügelig mit Blockzarge BS48-N mit Türterminal und umlaufender Glaswand
Aluminium-Rahmentür ART55, einflügelig mit Blockzarge BS48-N mit Türterminal und umlaufender Glaswand
Aluminium-Rahmentür ART55, einflügelig mit KLS48-35, umlaufend „schwimmend“ montiert in Glaswand
Aluminium-Rahmentür ART55, einflügelig mit KLS48-35, umlaufend „schwimmend“ montiert in Glaswand

Weiterführende Informationen: "Broschüre "Rahmentüren aus Aluminium"

Referenzen

Freizeitbad Stegermatt Offenburg
Raumhohe Verglasung mit Rahmentür ART55 | Freizeitbad Stegermatt in Offenburg
Raumhohe Verglasung mit Rahmentür ART55 | Freizeitbad Stegermatt in Offenburg
Küffner Aluminium - Profile BS46 + ART55 | Freizeitbad Stegermatt in Offenburg
Küffner Aluminium - Profile BS46 + ART55 | Freizeitbad Stegermatt in Offenburg
Schwimmbad Georgensgmünd
Küffner Aluminium-Rahmentür in barrierefreier WC-Anlage | Schwimmbad Georgensgmünd
Küffner Aluminium-Rahmentür in barrierefreier WC-Anlage | Schwimmbad Georgensgmünd
Küffner Aluminium-Rahmentür in barrierefreier WC-Anlage | Schwimmbad Georgensgmünd
Küffner Aluminium-Rahmentür in barrierefreier WC-Anlage | Schwimmbad Georgensgmünd
Küffner Aluminium-Rahmentür | Schwimmbad Georgensgmünd
Küffner Aluminium-Rahmentür | Schwimmbad Georgensgmünd
Schloßbad Neumarkt
Küffner Aluminium-Rahmentür mit Seitenteil | Schloßbad Neumarkt
Küffner Aluminium-Rahmentür mit Seitenteil | Schloßbad Neumarkt
Küffner Aluminium-Rahmentür mit Seitenteil | Schloßbad Neumarkt
Küffner Aluminium-Rahmentür mit Seitenteil | Schloßbad Neumarkt

Diese Seite anderen empfehlen
       


DAS HEINZE-NETZWERK

 

IHRE PRODUKTINFORMATIONEN IM HEINZE-NETZWERK

10 Millionen Besucher pro Jahr

37 Millionen Seitenabrufe pro Jahr

5 Millionen Downloads pro Jahr

120.000 Kontaktanfragen proJahr



© ais-online.de 2025 - Aluminium-Rahmentüren CO2 neutrale Website
444892132
47395886