Um den gefährlichen Klemmbereich zwischen Türkante und Zarge zu entschärfen, hat Küffner Fingerschutztüren mit „Knautschzone“ speziell für Kindertagesstätten und Schulen entwickelt. Durch zwei, in die Türkanten integrierte Fingerschutzdichtungen wird die Verletzungsgefahr an der Haupt- und Nebenschließkante einer Tür wesentlich reduziert.
Mit drei Türblattvarianten bietet Küffner eine übersichtliche Auswahl für alle Einsatzbereiche und Budgets.
Küffner bietet mit zwölf Zargenvarianten eine breite Vielfalt für jede Art von Einbausituation in Schulen und Kindertagesstätten. Von Standard-Umfassungszargen, Eck- und Blockzargen bis zu Renovierungs- und Schiebetürzargen.
Küffner-Fingerschutztüren können mit furnierten Holzoberflächen oder HPL-Holz-Dekoren geliefert werden.
Eine spezielle Falzprofilzarge ermöglicht die Kombination mit verschiedensten Holzzargen und kann mit handwerklich gefertigten Holzstockzargen oder auch Verglasungen mit Holzrahmen, ergänzt werden.
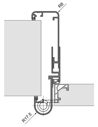
Die Profilzarge HFI wird in allen Oberflächen – eloxiert oder pulverlackiert in sämtlichen RAL-Classic Farben sowie auch in Holzdekor ausgeführt.


Schiebetüren können platzsparend vor einem Durchgang positioniert und seitlich verschoben werden.
Passend zu Küffner-Fingerschutzzargen wird eine schlanke Laufschiene mit Blende oberhalb der Umfassungszarge montiert, sodass das Schiebetürblatt vor der Wand verschoben werden kann. Entsprechende Einzugsdämpfer sorgen für einen sanften Anschlag und Zuhaltung.
In Verbindung mit einer elastischen Kunststoffkante auf der Türkante wird auch bei Schiebetürelementen ein wirksamer Fingerschutz möglich.
Renovierungszargen werden im Sanierungsfall zeit- und kostensparend über die vorhandenen alten Zargen montiert.
Küffner bietet verschiedene Renovierungslösungen an, die mit Fingerschutztüren kombiniert werden können.
Die Aluminiumzargen sind korrosionsbeständig und auch in Nassbereichen, Toiletten und Duschen einsetzbar.
Edelstahlschließbleche erhöhen die Beanspruchbarkeit im Schlossbereich, sowie in Verbindung mit besonderen Amoksicherungsbeschlägen.
können farblich aufeinander abgestimmt oder kontrastreich abgesetzt werden
sind mit unterschiedlichen Lichtausschnitten lieferbar
können mit Holzzargen kombiniert werden
haben integrierte Knautschzonen auf der Band- und der Schloss-Seite
können in komplette Verglasungen/Glaskonstruktionen integriert werden
sind als einflügelige Tür mit Oberblende oder Oberlicht verfügbar
sind zweiflügelig oder als Element mit feststehendem Bedarfsflügel möglich
können auch in Holz- und Betonwänden eingesetzt werden
sind mit Standard- oder Magnetfallenschloss erhältlich
sind für Nass- und Feuchträume geeignet
werden mit integrierten Bändern geliefert, wahlweise in Zargenfarbe
werden mit verringerter oder erhöhter Drückerhöhe gefertigt
Weiterführende Informationen: Broschüre "Fingerschutztüren"