XXL-Fotogalerie starten  
©
Bei hinterlüfteten Fassaden werden die keramischen Platten mechanisch sichtbar oder unsichtbar auf einer Tragkonstruktion befestigt.
18 XXL-Fotogalerie starten
Royal Mosa
Meerssenerweg 358
6201 BA Maastricht
Niederlande
Tel. +31 43 3689444
INFORMATIONSANFRAGE  

Informationsanfrage zu Hinterlüftete Fassaden

Meine Kontaktdaten bearbeiten
Name:
Firma:
-
Branche:
Architekt:in/Planer:in
Adresse:
,
Telefon:
-
E-Mail:

*Pflichtfelder

Mit dem Absenden erkläre ich damit einverstanden, dass die Heinze GmbH meine Kontaktdaten und Bürodaten zum Kundenservice speichert und diese an den Empfänger übermittelt. Die Einwilligung kann ich jederzeit widerrufen. Näheres erläutert der Datenschutzhinweis.


PRODUKTINFORMATIONEN ZUM BEREICH "HINTERLÜFTETE FASSADEN"

Mechanische Befestigung

Hinterlüftete Fassadensysteme

Bei hinterlüfteten Fassadensystemen befindet sich ein belüfteter Hohlraum zwischen Fassade und Unterkonstruktion. Dieser Hohlraum bildet eine Dämmschicht, mit der Temperaturdifferenzen zwischen Innenraum und Außenbereich ausgeglichen werden. Außerdem ist mit dieser Schicht eine gute Feuchtigkeitsableitung (Wasserdampf und Regen) sichergestellt. Die Dämmung trocknet schnell ab und behält ihren Rc-Wert bei. So lässt sich die Gefahr von Wärmebrücken auf ein Mindestmaß reduzieren. Außerdem werden Außengeräusche gedämpft. Hinterlüftete keramische Fassaden von Mosa besitzen eine sehr lange Lebensdauer. Sie zeichnen sich durch geringe Wartungskosten aus und können in allen Neubau- und Renovierungsprojekten eingesetzt werden.

Untergrund

Die hinterlüfteten Fassadensysteme lassen sich auf verschiedenen Untergründen verarbeiten, wie zum Beispiel:

  • Backstein

  • Beton

  • Sandwichpaneelen

  • Holzskelettbauweise

Gestaltungsfreiheit

Die mechanische Befestigung eignet sich ideal für den Einsatz großflächiger Platten von Mosa und bietet eine große Gestaltungsfreiheit

De Nekkerpool Mechelen (BE) VenhoevenCS architecture+urbanism / Archi+i 2013 Terra Tones 216XYZV
De Nekkerpool Mechelen (BE) VenhoevenCS architecture+urbanism / Archi+i 2013 Terra Tones 216XYZV
Rabobank Land van Cuijk en Maasduinen Beugen (NL) Novares Architecten 2013 Terra Maestricht
Rabobank Land van Cuijk en Maasduinen Beugen (NL) Novares Architecten 2013 Terra Maestricht
Farbübersicht

Folgende Fliesenserien stehen für mechanisch befestigte, hinterlüftete Fassadensysteme zur Verfügung.

(Durch Doppelklicken werden die Farbübersichten der einzelnen Serien angezeigt.)

Weitere Informationen auf mosa.com/Fassadenfliesen und im PDF Fassaden

Blue Water Energy Services Hoofddorp (NL) N30 2014 Terra Maestricht 201V / 204V / 211V
Blue Water Energy Services Hoofddorp (NL) N30 2014 Terra Maestricht 201V / 204V / 211V

Nachhaltigkeit

Cradle to Cradle

Die hinterlüftete Systemfassade von Mosa wurde 2021 erneut mit dem Cradle to Cradle Silver-Zertifikat ausgezeichnet. Mosa Facades verfügt mit der Zertifizierung über eines der wenigen Keramik-Fassadensysteme, das nachhaltiges Bauen erleichtert.

Weitere Informationen zur Nachhaltigkeit bei MOSA

Environmental Product Declaration (EPD)

Mosa verfügt über eine extern validierte Lebenszyklusanalyse (LCA), die gemäß der europäischen Norm 15804+A2 durchgeführt wurde und volle Transparenz über die Umweltprofile der Fliesen bietet. Auf der Grundlage dieser Analyse hat Mosa eine Umweltproduktdeklaration (EPD) für seine Wand- und Bodenfliesen erhalten.

EPD anfordern

Unsichtbare Befestigung

MF_Geusseltbad
MF_Geusseltbad

Mit dem System der unsichtbaren Befestigung mechanischer Platten lassen sich ästhetisch äußerst hochwertige Fassaden realisieren. Kombinationen verschiedener Plattengrößen können so unsichtbar befestigt werden. Dank der offenen Fuge und der absolut gerade ausgerichteten keramischen Platten entsteht ein attraktives Linienspiel.

Detailansicht
Detailansicht
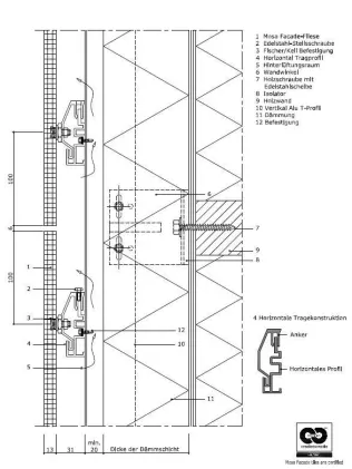
Vertikalschnitt
Vertikalschnitt
Unterkonstruktion

Die keramischen Platten werden auf vertikal und horizontal montierten Aluminiumprofilen befestigt. Mittels eines Hinterschnittbohrers von Keil oder Fischer werden auf der Rückseite der keramischen Platte Löcher gebohrt, an denen mittels Schrauben ein Anker befestigt wird. Mosa besitzt hierfür entsprechende ETA-Zulassungen (ETA 09/0348 und ETA 11/0465).

Spezielle Platten für Ecken, Kanten oder sonstige Anschlüsse sind lieferbar.

Albert Heijn Markenpoort Almere Haven (NL) Atelier Dutch 2013 Terra Beige & Brown 262V / 266V / 270V
Albert Heijn Markenpoort Almere Haven (NL) Atelier Dutch 2013 Terra Beige & Brown 262V / 266V / 270V
Head Office PWN Velserbroek (NL) Kraaijvanger 2015 Terra Maestricht 210V
Head Office PWN Velserbroek (NL) Kraaijvanger 2015 Terra Maestricht 210V
Faenhuskervey private home Apeldoorn (NL) COURAGE Architecten 2013 Terra Beige & Brown 265V
Faenhuskervey private home Apeldoorn (NL) COURAGE Architecten 2013 Terra Beige & Brown 265V

Anschlüsse an Ecken, Kanten, Dächer oder andere Bauelemente, wirken sich auf die Gesamtausstrahlung einer Fassadenfläche in besonderem Maße aus. Mosa ist mit solchen Details vertraut und liefert deshalb auch Spezialelemente, mit denen ein nahtloser Anschluss gewährleistet ist. Dank der offenen Ecken, Facettenecken und integrierten Eckelementen lässt sich so ein perfektes und rhythmisch ansprechendes Fassadenbild kreieren. Mosa berät gerne zu allen Optionen und lieferbaren Lösungen.

Facettenecken
Facettenecken
Integrierte Eckeelemente
Integrierte Eckeelemente
Offene Ecke
Offene Ecke

Weitere Informationen auf mosa.com/de/Fassadenfliesen und im PDF Fassaden

Sichtbare Befestigung

MF_Gouwezone
MF_Gouwezone
Detailansicht
Detailansicht
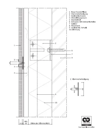
Vertikalschnitt
Vertikalschnitt

Bei einer sichtbaren Befestigung können keramische Platten von Mosa mittels Doppelklammernsystem auf einer Unterkonstruktion mit vertikal verlaufendem Aluprofil befestigt werden. Die Klammern, die sichtbar bleiben und sich in den Fassadenentwurf integrieren lassen, können in einer entsprechenden Farbe beschichtet werden. Auch hiermit lässt sich ein ansprechender Fassadenrhythmus schaffen.

Spezielle Platten für Ecken, Kanten oder sonstige Anschlüsse sind lieferbar.

MF_Slegers Budel
MF_Slegers Budel
MF_Isabellaland
MF_Isabellaland

Weitere Informationen auf mosa.com/de/Fassadenfliesen und im PDF Fassaden


Diese Seite anderen empfehlen
       


DAS HEINZE-NETZWERK

 

IHRE PRODUKTINFORMATIONEN IM HEINZE-NETZWERK

10 Millionen Besucher pro Jahr

37 Millionen Seitenabrufe pro Jahr

5 Millionen Downloads pro Jahr

120.000 Kontaktanfragen proJahr



© ais-online.de 2025 - Hinterlüftete Fassaden CO2 neutrale Website
436335002
15568371