Rigips MW22RHRB-F90-68dB-W0I-0,4-2x50/625/155-2x40/50/A-2650


Rigips MW22RHRB-F90-68dB-W0I-0,4-2x50/625/155-2x40/50/A-2650
Rigips MW22RHRB-F90-68dB-W0I-0,4-2x50/625/155-2x40/50/A-2650
Rigips MW22RHRB-F90-68dB-W0I-0,4-2x50/625/155-2x40/50/A-2650
SAINT-GOBAIN RIGIPS GmbH
Willstätterstr. 60
40549 Düsseldorf
Deutschland
Tel. +49 900 3776347
INFORMATIONSANFRAGE  

Informationsanfrage zu Rigips MW22RHRB-F90-68dB-W0I-0,4-2x50/625/155-2x40/50/A-2650

Meine Kontaktdaten bearbeiten
Name:
Firma:
-
Branche:
Architekt:in/Planer:in
Adresse:
,
Telefon:
-
E-Mail:

*Pflichtfelder

Mit dem Absenden erkläre ich damit einverstanden, dass die Heinze GmbH meine Kontaktdaten und Bürodaten zum Kundenservice speichert und diese an den Empfänger übermittelt. Die Einwilligung kann ich jederzeit widerrufen. Näheres erläutert der Datenschutzhinweis.


Produkteigenschaften

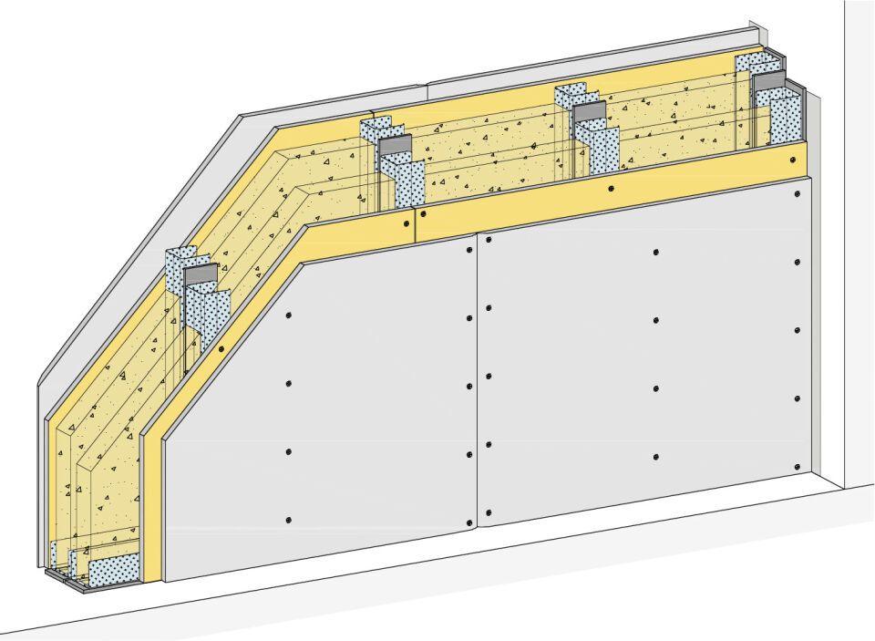
System-Nr.: MW22RHRB-010
Ausführung Unterkonstruktion: Ständerwerk
Feucht- / Nassraum: geeignet für Feuchtraum
Feuerwiderstandsklasse: F 90 - A
Oberfläche: verzinkt
Profilform: C-Profil
Typ CW-Profil: 50
Baustoff, Unterkonstruktion: Metall
Querschnitt: CW
Unterkonstruktion Trockenbau: Doppelständerwerk
Abstand Ständerachsen: 625mm
Dicke Dämmschicht: 40mm
Gewicht: 54kg
Höhe Wand: 3m
Rohdichte: 50kg/m³
Schalldämmmaß: 71dB
Wanddicke: 155mm
MEHR  

Herstellerspezifische Eigenschaften

Konsollast 0,4
Dicke Beplankung (mm) 12,5 + 12,5
Plattentyp Beplankung Rigidur H (RH), Rigips Bauplatte imprägniert (RBI)
Schichtaufbau 1.1 Rigidur H; 1.1 Rigidur H; 1.2 Rigips Bauplatte RBI; 2.1 Rigidur Fix Schnellbauschraube; 2.2 Rigips HartFix Schnellbauschraube; 2.3 z.B. Rigips Nageldübel; 3.1 RigiProfil MultiTec UW; 3.2 RigiProfil MultiTec CW; 3.3 Rigips Anschlussdichtung Filz – einseitig selbstklebend; 3.4 Rigips Anschlussdichtung Filz – zweiseitig selbstklebend; 4.1 Isover Protect BSP; 5.1 z.B. VARIO Fugenspachtel; 5.1 VARIO 30 Fugenspachtel; 5.1 ProMix Plus; 5.1 ProMix Airless; 5.1 SUPER Fugenfüller; 5.1 Rigidur Fugenkleber; 5.2 Rigips TrennFix; 5.2 Rigips Glasfaserbewehrungsstreifen; 5.2 Rigips Papierbewehrungsstreifen
Wassereinwirkungsklasse W0-I

Downloads

Excel-Export

Word-Export

Dokumente und Planungshilfen

Datenblatt

MW22RHRB

Revit

MW22RHRB-155-68db-F30A.rvt

MW22RHRB-155-68db-F90A.rvt

MW22RHRB-205-70db-F30A.rvt

MW22RHRB-205-70db-F90A.rvt

MW22RHRB-255-71db-F30A.rvt

MW22RHRB-255-71db-F90A.rvt

Diese Seite anderen empfehlen
       


DAS HEINZE-NETZWERK

 

IHRE PRODUKTINFORMATIONEN IM HEINZE-NETZWERK

10 Millionen Besucher pro Jahr

37 Millionen Seitenabrufe pro Jahr

5 Millionen Downloads pro Jahr

120.000 Kontaktanfragen proJahr



© ais-online.de 2025 - Rigips MW22RHRB-F90-68dB-W0I-0,4-2x50/625/155-2x40/50/A-2650 CO2 neutrale Website
435644547
46916214