Für den Anschluss an die Wand sorgen Zargen (Türrahmen) aus Stahl. So vielfältig wie Türen in Größe, Funktion, Form, Farbe und Ausführung sind, so sind auch Zargen – je nach Anforderung der Wand – in einer großen Auswahl erhältlich.
Kombinationszargen ermöglichen es, eine Tür gleichzeitig an verschiedene Wandsysteme bzw. -geometrien anzuschließen. Alle Produkte lassen sich mit nur wenigen Dübeln und Schrauben befestigen und können zudem werkseitig mit den erforderlichen Füllungen ausgestattet werden.

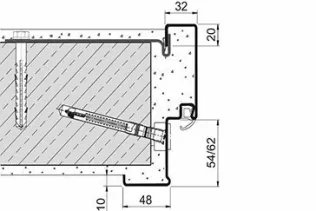
Schnelle und verdeckte Montage mit Justierschrauben und nur einem Befestigungspunkt






Das montagefreundliche System der Eckzarge TSM ermöglicht eine mörtelfreie Zargenbefestigung – optional auch in Laibungstiefe. Die Zarge ist werkseitig mit Mineralwolle hinterfüllt. Die Montage erfordert keine zeitraubende Vermörtelung, verursacht keine Verschmutzung und kann durch einfache Fixierung der Zarge durch einen Spezial-Zargenanker in einem Zug befestigt werden. Die unsichtbare Befestigung wertet die Gesamtoptik auf. Die montagefreundliche Zarge ist auch für den nachträglichen Einbau an einer fertigen Wand geeignet.




Verdeckte Montage der Gegenzarge mit speziellem Klappanker.








Schnelle und verdeckte Montage der Umfassungszarge mithilfe von Justierschrauben und Aufschiebeanker.





















Download PDF Einbaudetails Zargenlösungen