Softline Solid Revisionstür mit Vierkantverschluss


Softline Solid Revisionstür mit Vierkantverschluss
Softline Solid Revisionstür mit Vierkantverschluss
Softline Solid Revisionstür mit Vierkantverschluss
Sehr stabile Ausführung, 1,5 mm Stahlblech verzinkt oder V2A für den Einsatz bei hoher Beanspruchung. Maueranker sorgen für eine sichere Montage in Wand oder Decke. Rahmen mit gesoftetem Profil für sauberen Abschluss auf Putz oder Gipskartonoberflächen. Aushängbares Türblatt.
Upmann GmbH & Co. KG
Weidenweg 20
33397 Rietberg
Deutschland
Tel. +49 5244 985-0
Fax +49 5244 985-110
INFORMATIONSANFRAGE  

Informationsanfrage zu Softline Solid Revisionstür mit Vierkantverschluss

Meine Kontaktdaten bearbeiten
Name:
Firma:
-
Branche:
Architekt:in/Planer:in
Adresse:
,
Telefon:
-
E-Mail:

*Pflichtfelder

Mit dem Absenden erkläre ich damit einverstanden, dass die Heinze GmbH meine Kontaktdaten und Bürodaten zum Kundenservice speichert und diese an den Empfänger übermittelt. Die Einwilligung kann ich jederzeit widerrufen. Näheres erläutert der Datenschutzhinweis.


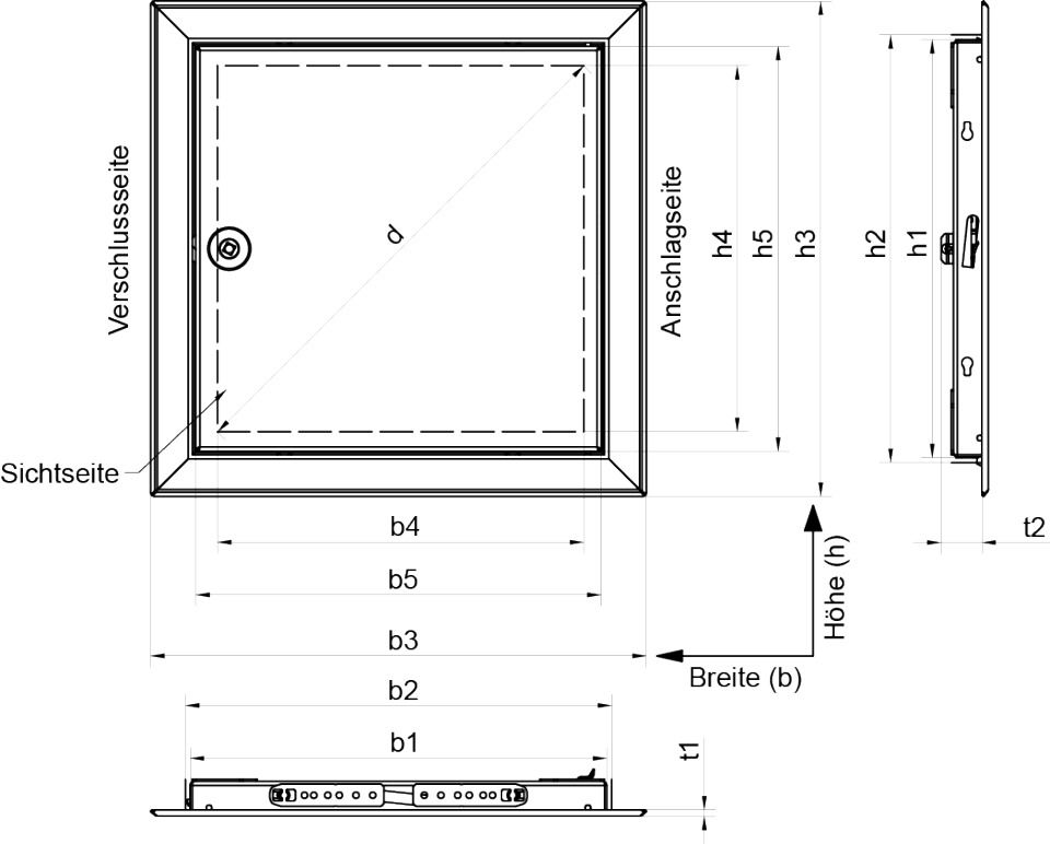
Produkteigenschaften

Farbton: weiß
Oberfläche: pulverbeschichtet, verzinkt
Werkstoff: Stahl
Breite: 300mm, 400mm, 500mm, 600mm, 800mm, 1.000mm
Einbaubreite: 300mm, 400mm, 500mm, 600mm, 800mm, 1.000mm
Einbauhöhe: 300mm, 400mm, 500mm, 600mm, 800mm, 1.000mm
Höhe: 300mm, 400mm, 500mm, 600mm, 800mm, 1.000mm
Verschließtechnik: Vierkantverschluss
Anzahl der Verschlüsse: 1, 2, 3
Breite Türblatt: 291mm, 391mm, 491mm, 591mm, 791mm, 991mm
Höhe Türblatt: 291mm, 391mm, 491mm, 591mm, 791mm, 991mm
MEHR  

Herstellerspezifische Eigenschaften

Rahmenaußenmaß A (mm) 356, 456, 556, 656, 856, 1056
Rahmenaußenmaß B (mm) 356, 456, 556, 656, 856, 1056
Rahmen Innenmaß / Lichte Weite A 263, 363, 463, 563, 763, 963
Rahmen Innenmaß / Lichte Weite B 263, 363, 463, 563, 763, 963
Durchgangsmaß (mm) 371, 513, 654, 796, 1079, 1361
Türblatt aushängbar Ja
Bauöffnungsmaß Breite Min. (mm) 302, 402, 502, 602, 802, 1002
Bauöffnungsmaß Höhe Min. (mm) 302, 402, 502, 602, 802, 1002

Downloads

Excel-Export

Word-Export

Dokumente und Planungshilfen

weitere Produktinformation

Katalog Revisionsverschlüsse

Diese Seite anderen empfehlen
       


DAS HEINZE-NETZWERK

 

IHRE PRODUKTINFORMATIONEN IM HEINZE-NETZWERK

10 Millionen Besucher pro Jahr

37 Millionen Seitenabrufe pro Jahr

5 Millionen Downloads pro Jahr

120.000 Kontaktanfragen proJahr



© ais-online.de 2025 - Softline Solid Revisionstür mit Vierkantverschluss CO2 neutrale Website
434707596
42187833