Aluminium, Stahl, Edelstahl und/oder mit Gipskartoneinlage für Wand- und Deckeneinbau
AluEco: Rahmen und Klappe aus Aluminiumprofilen, Gipskartoneinlage H2 nach DIN EN 520, GKBi nach DIN 18180 flächenbündig eingeklebt
AluStar: mit Gipskartoneinlage für Wand- und Deckeneinbau: Aluprofil mit verzinkten Verbindungselementen Geschraubte Gipskartonplatte, H2 nach DIN EN 520, GKBi nach DIN 18180
AluStar Airproof: luft-, staub- und rauchdicht:
Luftdichte Ausführung, geprüft nach DIN EN 14351 Klasse 4 bei Überdruck, Klasse 3 bei Sog, max. 600 PA Prüfbericht MPA NRW 120002612-20/27
Rauchdichte Ausführung, geprüft in Anlehnung an DIN 18095-2, Prüfbericht MPA NRW 120003320-07
AluRondo: Runde Revisionsklappe mit Schnappverschluss
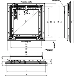
Revisionsklappe verzinkt für Wand- oder Deckeneinbau
Revisionsklappe mit Lochplatteneinlage, Rahmen und Klappe aus verzinktem Stahlblech
Einschub-Revisionstür für nachträglichen Wand- oder Deckeneinbau
Feuerwiderstandfähigkeit 30 Minuten
Geprüft auf Luftschalldämmung in Anlehnung an ISO 10140-2. Ergebnisbewertung nach ISO 717-1: Rw (C;Ctr) = 37 dB
Geprüft auf Luftdurchlässigkeit DIN EN 1026:2016-09/ Klassifzierung DIN EN 12207:2017-03: Klasse 4.
Prüfung auf Rauchdichtheit S200 nach EN 1634-3/ DIN 18095.
Breites Einsatzspektrum durch abZ/ aBG vom DIBt, Berlin Z-6.55-2585.
Feuerwiderstandfähigkeit 90 Minuten
Geprüft auf Luftschalldämmung in Anlehnung an ISO 10140-2. Ergebnisbewertung nach ISO 717-1: Rw (C;Ctr) = 39 dB
Breites Einsatzspektrum durch abZ vom DIBt, Berlin Z-6.55-2529
Prüfung auf Rauchdichtheit S200
Dichtung
Einschublösung
Wechselanschlag
Aushängbares Türblatt
Kein Brandschutzpack
Vierkantverschluss
AluStar 30 für Unterdecken mit Brandschutz F 30.
Geschraubte GKF Einlage.
Rauchdicht in Anlehnung an DIN 18095-2:1991-09.
Airproof in Anlehnung an DIN EN 14351-1, Druck: Klasse 3, Sog: Klasse 2
Zulassung durch abZ/aBG vom DIBt, Berlin Z-6.55-2588.
Brandschutz nur mit aufgelegtem Brandschutzpack.
Verriegelung durch Vierkantverschluss und Schnappverschlüsse. Klappe lässt sich komplett herausnehmen.
Inklusive Fangvorrichtung.
Auf Anfrage auch mit Zylinder + KRS lieferbar

Softline: Stahlblech oder Edelstahl mit Vierkant- Zylinder– oder Kastenriegelschloss sowie Schnappverschluss, auch mit Lüftungsschlitzen
Revisionstür Rrimus mit Vierkantverschluss, Aluminium
Revisionstür Z-Profil gedämmt, Airproof „luft- und staubdicht“
Revisionstür Softline solid mit Vierkantverschluss oder Airproof „luft-, staub- und rauchdicht“, auch gedämmt
Revisionstür Softline rainproof für Wandeinbau im Außenbereich
Revisionstür Sonderausführungen
Kingsize-Revisionstür für den Wandeinbau, max. 1000 x 2000 mm
Upmann Katalogabschnitt: Revisionsverschlüsse |