Alle WICONA-Serien werden aus der Aluminiumlegierung Hydro CIRCAL, die aus mindestens 75% End-of-Life Aluminium besteht, hergestellt.
Der CO2-Fußabdruck von Hydro CIRCAL ist gering: 2,3 Kilogramm CO2 pro Kilogramm Aluminium, zertifiziert von unabhängigen Drittprüfern und mit der entsprechenden Environmental Product Declaration (EPD).
Mit dem innovativen Konzept 75/95 geht WICONA noch einen Schritt weiter in Richtung Kreislaufwirtschaft: Mit der Verwendung von 75% recyceltem und 95% recycelbarem Material können die CO2-Emissionen der WICONA-Produkte minimiert werden.
Die Herstellung ist unabhängig nach ISO 14064 zertifiziert, durch die Initiative A|U|F Wertstoffkreislauf bestätigt und komplett nachverfolgbar.
Nachhaltigkeitsproduktpass des ift Rosenheim | EPD des Instituts Bauen und Umwelt e.V. | Internationale Auszeichnung von Cradle to Cradle. | Aluminium Stewardship Initiative (ASI)
LEED | BREEAM | DGNB
Fassadensanierungssysteme | Bauen im Bestand (ohne Abbildung)
Immer die passende Fassadenlösung durch große Systemvielfalt
Für alle Gebäudestrukturen bis hin zu dreidimensionalen Objekten wie Pyramiden, Polygonen, Tonnengewölben oder Rundüberdachungen
Kombinierbar mit WICONA Fenster-, Tür- und Schiebesystemen
Hochwärmedämmende, einbruchhemmende, durchschusshemmende und Branschutzausführungen sind mit identischer Optik und mit wenigen Zusatzteilen zur Standard- Grundkonstruktion möglich
Anpassung an individuelle Designwünsche durch große Profil- und Ausgestaltungsvielfalt
Umfangreiche Systemprüfungen nach internationalen Standards, wie z.B. die Produktnorm für Vorhangfassaden EN 13830, belegen die hohe Qualität der Systemtechnik
Basierend auf dem WICONA Unisys Prinzip: Umfangreiche Gestaltungsfreiheit, hohe Prozesssicherheit, Kosten- und Zeitersparnis, einfache Produktion, geringer Werkzeugeinsatz
WICONA Unisys ist ein modulares Konzept für alle WICONA Systemkonstruktionen:
bei allen Fassaden kann mit gleichen Verarbeitungsschritten, Zubehör, Dichtungen, Dicht- und Verbindersystemen gearbeitet werden.

WICTEC Pfosten-Riegel-Fassaden sind die flexiblen Allrounder unter den WICONA Fassadensystemen.
Ansichtsbreiten von 50 und 60 mm ermöglichen eine filigrane Ansicht der Fassade.
Zusätzliche Funktionen für Sicherheit und höchste Wärmedämmung mit Uw-Werten bis unter 0,8 W/(m2K) können ohne optische Einbußen mit geringstem zusätzlichem Aufwand erfüllt werden.
WICTEC 50 (50 mm Ansichtsbreite)
WICTEC 60 NG (60 mm Ansichtsbreite)
WICTEC 50 HI (Passivhausfassade)
WICTEC 50A (Aufsatzkonstruktion Stahl / Holz)
WICTEC 50SG-Design (Structural Glazing Design mit minimierten Profilansichten)
WICTEC 50SG (Structural Glazing)
Sicherheitsfassaden:
WICTEC Brandschutz
WICTEC Einbruchhemmung
WICTEC Durchschusshemmung
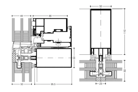
WICTEC 50 ist die Basisversion der Pfosten-Riegel-Fassade mit einer Ansichtsbreite von 50 mm innen und außen.
WICTEC 50 ist in vielen Systemvarianten und mit vielen Erweiterungsmöglichkeiten lieferbar. Diese sind alle mit geringen Systemergänzungen ohne optische Einbußen realisierbar.
WICTEC 50 wurde als erste passivhaustaugliche Aluminium-Glasfassade durch das ift Rosenheim zertifiziert und ist mit sehr geringem zusätzlichem Aufwand auf Basis der Standardserie ausführbar.
Durch Einsatz eines einfach zu montierenden Dämmprofils wird die Wärmedämmung von Uf = 0,65 W/(m2K) erreicht.
Weitere Informationen:
WICTEC 50A als Aufsatzvariante ermöglicht die direkte Verglasung auf Tragkonstruktionen aus Stahl oder Holz.
Damit bietet WICTEC die freie Wahl des Tragwerkstoffes, Aluminium, Stahl oder Holz, bei identischer Außenansicht und Verglasungstechnik der Fassade.


WICTEC 50 erzielt mit integrierten Andruckprofilen eine SG-ähnliche Fassadenästhetik in einer kostengünstigen Variante. Durch die Verglasungstechnik mit einer mit dem Glasflächen bündigen oder alternativ sehr flach aufliegenden Andruckleiste ist die Herstellung und Montage so schnell und einfach wie bei der klassischen Pfosten-Riegel-Fassade.
Weitere Informationen:
Das System bietet Ganzglastechnik mit Isolierverglasung und kann mit seiner filigranen Optik sowohl in vertikalen Fassaden wie in Glasdächern eingesetzt werden.
Auf Basis der WICTEC Pfosten-Riegel-Fassade können diese Varianten einfach und wirtschaftlich auf hohem technischem Niveau erstellt werden. Mit dem WICLINE 90SG Flügel in Ganzglasausführung wird die homogene Ganzglasoptik bei Senk-Klapp- oder Parallel-Ausstellfenstern zusätzlich unterstrichen.
Weitere Informationen:
Mit WICTEC FP lassen sich alle Fassadenvarianten auf die notwendigen Schutzanforderungen (G30 bzw F30) abstimmen. Die Ausführung FP basiert auf den Standardfassaden WICTEC 50 und WICTEC 60.
Weitere Informationen:
Die verschieden hohen Anforderungen im Bereich Einbruchhemmung werden bei allen WICTEC Fassadenserien ohne optische Veränderungen mit geringfügigen Zusatzmaßnahmen auf Basis der Grundkonstruktionen erfüllt.
Weitere Informationen:
Die Anforderungen im Bereich Durchschusshemmung werden bei WICTEC Fassadenserien durch eine Erweiterung mit speziellen Aluminium-Vorsatzprofilen erreicht. Durchschusshemmung nach DIN EN 1522: FB4
Weitere Informationen:

Elementfassaden bestehen aus werkseitig vorgefertigten, mindestens geschosshohen Einzelelementen, die den kompletten Raumabschluss bilden. Elementfassaden integrieren alle erforderlichen Bestandteile wie Brüstungen, Deckenkopfbekleidungen und transparente, zum Teil öffenbare Felder, in einem „Element“.
Lieferprogramm Elementfassaden
WICTEC EL EVO
WICTEC EL50
WICETC 60EL
WICTEC Modul Air (Closed Cavity Fassade)
rationelle Abwicklung durch Serienfertigung von wiederkehrenden Elementstrukturen
komplett witterungsunabhängige Vormontage der einzelnen Fassadenelemente
ergänzende Bauteile wie Öffnungselemente, Gebäudetechnik- Komponenten, Paneele, Verkleidungen oder Sonnenschutz sind integrierbar
Zeitgewinn und Kostenersparnis durch Just-in-time-Anlieferung und Montage von Fertigelementen (ohne Gerüst)
energetische Verbesserung während der Gebäudenutzung im Sanierungsfall
Das modularisierte Fassadensystem mit schmalen Ansichtsbreiten und gleicher Profiltiefe für Pfosten und Riegel kann individuell an projektspezifische Anforderungen angepasst werden. Schmale Rahmenansichtsbreiten selbst bei extremen Gebäudebewegungen durch die patentierte „Federdichtung“ in horizontalen Fugen zwischen den Elementen. Schnelle und einfach planbare Montage vor Ort durch Fertigung der Bauteile in kontrollierter Werkstattumgebung.
Weitere Informationen: WICTEC EL EVO - modularisiertes Fassadensystem
WICTEC 50EL ist eine Variante der Pfosten-Riegel-Fassade WICTEC 50. Diese Serie kombiniert die Vorteile der Pfosten-Riegel-Struktur mit den Montagevorteilen der Elementfassade bei einer schlanken Ansichtsbreite von nur 50 mm bzw. 65 mm. Von außen aufgesetzte Glasleisten mit Gehrung erzielen eine besonders elegante Optik.
Wärmedämmwerte: Uf bis 1,4 W/(m2K)
Weitere Informationen: WICTEC 50EL - Elementfassade
WICTEC EL60 ist die filigrane Version der Elementfassade mit besonders schlanken Ansichtsbreiten von nur 60 mm innen und außen. Von außen aufgesetzte Glasleisten mit Gehrung erzielen eine besonders elegante Optik
Wärmedämmwerte: Ucw-Werten bis zu 0,9 W/(m2K)
Weitere Informationen: WICTEC EL60 - Elementfassade
Ein System aus Fassade, Sonnenschutz und Trockenluftanlage, Fertigung und Montage durch zertifizierte WICONA Partner, Garantie, Wartung und 24/7 Service: Alles aus einer Hand – das ist WICTEC MODUL AIR. Alle Komponenten sind aufeinander abgestimmt und langzeiterprobt. So gewährleisten sie höchste Funktionalität und Sicherheit bei geringen Betriebs- und Wartungskosten.
Weitere Informationen: WICTEC Modul Air | Closed Cavity Fassade (CCF)
Variolux bietet eine Vielzahl an Gestaltungsmöglichkeiten: eine komplett verglaste Gebäudehülle, ein gebogenes Dach oder die Integration von PV-Paneelen. Auch nachträgliches Umrüsten oder Anbauten zur Realisierung zukunftsgerechter Greenfarmingkonzepte sind möglich. Das System ist kompatibel mit allen Fenstern, Tür- und Fassadensystemen von WICONA und ist – je nach Projektanforderung – auch als hoch isolierende und thermisch getrennte Ausführung möglich.
Weitere Informationen: Glashaussystem I VARIOLUX (wicona.com)
WICONA Systeme bieten für Fassadensanierungen thermisch optimierte Systeme. Ein großes Anwendungsspektrum bietet für jedes Modernisierungskonzept die geeignete Lösung.
Weitere Informationen folgen in Kürze
Bei dem außenliegenden Sonnenschutz handelt es sich um ein Lamellensystem aus extrudiertem Aluminium. Die Lamellen können in verschiedenen Winkeln und Abständen individuell positioniert werden und erhöhen somit den Nutzerkomfort.
Individuelle Einstellbarkeit verbessert die Energiebilanz des Gebäudes
Erhöhter Nutzerkomfort: der visuelle Kontakt mit der Umgebung des Gebäudes bleibt erhalten
Maximale Ausführungsmöglichkeiten mit vertikaler oder horizontaler Ausrichtung von festen oder beweglichen Lamellen, auch als Vordachausführung.
Weitere Informationen: WICSOLARIRE - Systemunabhängige Tragkonstruktion
Lamellen werden direkt an einer WICONA Pfosten-Riegel-Fassade befestigt
Weitere Informationen: WICSOLAIRE - Lamellen mit Tragkonstruktion