XXL-Fotogalerie starten  
©
Brandschutz-Bodeneinläufe aus Edelstahl, zum Einbau ohne Vermörtelung und zum Einbau mit Vermörtelung
4 XXL-Fotogalerie starten
Wiedemann GmbH
Siemensstr. 16-18
25813 Husum
Deutschland
Tel. +49 4841 778-0
Fax +49 4841 1687
INFORMATIONSANFRAGE  

Informationsanfrage zu Brandschutz-Bodeneinläufe Edelstahl

Meine Kontaktdaten bearbeiten
Name:
Firma:
-
Branche:
Architekt:in/Planer:in
Adresse:
,
Telefon:
-
E-Mail:

*Pflichtfelder

Mit dem Absenden erkläre ich damit einverstanden, dass die Heinze GmbH meine Kontaktdaten und Bürodaten zum Kundenservice speichert und diese an den Empfänger übermittelt. Die Einwilligung kann ich jederzeit widerrufen. Näheres erläutert der Datenschutzhinweis.


PRODUKTINFORMATIONEN ZUM BEREICH "BRANDSCHUTZ-BODENEINLÄUFE EDELSTAHL"

Bodeneinläufe mit Brandschutz

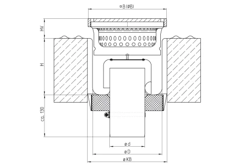
Brandschutz-Bodeneinlauf (Einbau ohne Vermörtelung)

gemäß APZ Z-19.17-2169

Das neue Brandschutzsystem sorgt in Wiedemann-Bodeneinläufen für Schutz im Brandfall. Der Bodeneinlauf mit Brandschutz wird mörtelfrei eingebaut und verfügt über einen besonders kleinen Kernbohrungsdurchmesser.

Merkmale
  • keine Vermörtelung notwendig

  • geringe Kernlochdurchmesser für die Montage

  • Anschluss eines brennbaren Abwasserrohres möglich

  • einfache Montage, keine Arbeiten unterhalb der Geschossdecke

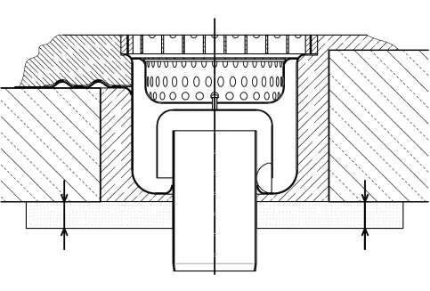
Bodeneinlauf mit Brandschutz (Einbau mit Vermörtelung)

gemäß APZ Z-19.17-2169

Montagehinweise
  • Einbau in Kernbohrungen

  • Ablaufkörper muss vollständig in der Decke eingemörtelt sein.

  • Mindestdicke der Rohdecke: 200 mm (ggf. Aufdopplung mit Promatect BS-Platte)

  • Durchmesser der Kernbohrung in der Rohdecke – siehe Tabelle im nachfolgenden Download-Dokument

Bodeneinlauf mit Brandschutz (Einbau mit Vermörtelung)

gemäß ABP P3459/4000-MPA-BS

Montagehinweise
  • Einbau in Kernbohrungen

  • Ablaufkörper muss vollständig in der Decke eingemörtelt sein.

  • Mindestdicke der Rohdecke: 200 mm (ggf. Aufdopplung mit Promatect BS-Platte)

  • Durchmesser der Kernbohrung in der Rohdecke – siehe Tabelle im nachfolgenden Download-Dokument

Downlaod Technische Hinweise Bodeneinlauf mit Brandschutz gemäß APZ Z-19.17-2169


Diese Seite anderen empfehlen
       


DAS HEINZE-NETZWERK

 

IHRE PRODUKTINFORMATIONEN IM HEINZE-NETZWERK

10 Millionen Besucher pro Jahr

37 Millionen Seitenabrufe pro Jahr

5 Millionen Downloads pro Jahr

120.000 Kontaktanfragen proJahr



© ais-online.de 2025 - Brandschutz-Bodeneinläufe Edelstahl CO2 neutrale Website
435022474
16397458