Spezialbodeneinläufe Edelstahl, Sonderbau


XXL-Fotogalerie starten  
©
Spezial-Bodeneinläufe: mit einem sehr großem Schlammfangvolumen, beheizbar, pneumatisch verschließbar oder für Reinsträume geeignet
6 XXL-Fotogalerie starten
Wiedemann GmbH
Siemensstr. 16-18
25813 Husum
Deutschland
Tel. +49 4841 778-0
Fax +49 4841 1687
INFORMATIONSANFRAGE  

Informationsanfrage zu Spezialbodeneinläufe Edelstahl, Sonderbau

Meine Kontaktdaten bearbeiten
Name:
Firma:
-
Branche:
Architekt:in/Planer:in
Adresse:
,
Telefon:
-
E-Mail:

*Pflichtfelder

Mit dem Absenden erkläre ich damit einverstanden, dass die Heinze GmbH meine Kontaktdaten und Bürodaten zum Kundenservice speichert und diese an den Empfänger übermittelt. Die Einwilligung kann ich jederzeit widerrufen. Näheres erläutert der Datenschutzhinweis.


PRODUKTINFORMATIONEN ZUM BEREICH "SPEZIALBODENEINLÄUFE EDELSTAHL, SONDERBAU"

Industriebodeneinläufe – Spezial-Bodeneinläufe

Beheizbarer Industriebodeneinlauf Modell 93

Beheizbarer Bodeneinlauf, speziell für Kühl- und Tiefkühlräume. Das herausnehmbare Innenteil ist mit Heizband umwickelt, dadurch ist eine Wartung jederzeit möglich. Geeignet für Temperaturen bis -20°C, zum Direktanschluss an 230 V-50Hz.

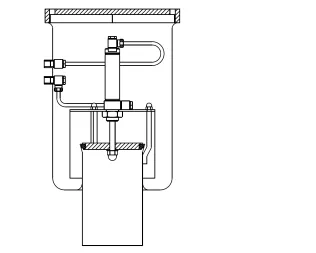
Pneumatisch verschließbarer Industriebodeneinlauf Modell 94

Dieser „Havarie-Bodeneinlauf“ wird überall dort eingesetzt, wo eine automatisch gesteuerte Verschlussmöglichkeit des Bodeneinlaufes gewährleistet werden muss. Der Ablaufstutzen wird über einen pneumatisch angetriebenen Dichtteller geöffnet und geschlossen.

Industriebodeneinlauf Modell 81

„Fleischerei-Bodeneinlauf“ mit einem sehr großem Schlammfangvolumen bei geringer Abgangsrohrtiefe. Durch einen demontierbaren Revisionsdeckel im eingeschweißten Geruchsverschluss ist das Abgangsrohr zugänglich.

Industriebodeneinlauf Modell 72WN

Bei Sanierungen von Betriebsräumen können vorhandene Gussabläufe bedenkenlos durch diesen Bodeneinlauf ersetzt werden. Durch seine sehr niedrige Bauform bei großem Schlammfangvolumen ist er individuell einsetzbar.

Industriebodeneinlauf Modell 96

Bodeneinlauf mit kombiniertem großen Schlammfang und Geruchsverschluss bei geringer Gesamtbauhöhe. Stabiler Einlaufrand aus 8 mm Flachmaterial.


Diese Seite anderen empfehlen
       


DAS HEINZE-NETZWERK

 

IHRE PRODUKTINFORMATIONEN IM HEINZE-NETZWERK

10 Millionen Besucher pro Jahr

37 Millionen Seitenabrufe pro Jahr

5 Millionen Downloads pro Jahr

120.000 Kontaktanfragen proJahr



© ais-online.de 2025 - Spezialbodeneinläufe Edelstahl, Sonderbau CO2 neutrale Website
442067689
15310532