Isolation. Sehr geehrte Leserinnen und Leser, dies ist ein Begriff der uns wahrscheinlich alle, nicht nur seit einigen Tagen begleitet. Seit dem Beginn der Corona-Pandemie war wohl der ein oder andere von uns, sei es freiwillig oder unfreiwillig, mit dem Begriff ‚Social Distancing‘ konfrontiert. Und auch wir Student*innen mussten uns wohl oder übel an einen vergleichsweise einsamen Universitätsalltag gewöhnen. Diese literarisch inspirierte Arbeit erzählt von einem exzentrischen Einzelgänger, der das Phänomen der Isolation auf die Spitze treibt und sich im Gegensatz zu den meisten von uns liebend gerne einer gewollten Quarantäne aussetzt. Wie können also potentielle Räume aussehen, die ganz bewusst auf ein Leben in Isolierung angepasst sind und den Aspekt des Alleinseins ausreizen? Die Welt die Sie hier zu sehen bekommen löst sich von jeglichen Konventionalitäten. Sie ist Abgrenzung in architektonischer Form. Sie macht es dem Betrachter möglich zu versinken und wie es in dem Buch so schön heißt den "Traum von der Wirklichkeit der Wirklichkeit selbst unterzuschieben“ (S.32).
Auf Grundlage der fiktiven Architektur des 1884 verfassten Romans ‚Gegen den Strich‘ von Joris-Karl Huysmans entstand das Haus des Buchprotagonisten ‚Jean Floressas des Esseintes'. Sämtliche Begebenheiten wie Ort, Typologie und Raumprogramm, konnten dabei aus dem Roman abgeleitet und frei interpretiert werden. Als Misanthrop grenzt sich der Protagonist ‚Des Esseintes‘ immer weiter von der Gesellschaft ab. Aus mangelndem Interesse an seinen Mitmenschen sehnt er sich nach einer vollständigen und unwiderruflichen Isolation, die er auf dem Dach eines Bestandsgebäudes an einem großen Boulevard in Paris findet. Mitten im städtischen Kontext begibt er sich in eine selbst auferlegte Quarantäne, die seine Andersartigkeit unterstreichen soll. Sein museumartiges Dachgefüge beinhaltet so manches, was ihn von seiner vielverhassten Gesellschaft abgrenzen würde - als Devise gilt: Hauptsache nicht normal. Die architektonische Dekadenz und übertriebene Künstlichkeit versetzen ihn in eine Art artifiziellen Rausch. Realität und Imagination verschwimmen.
„Dachte er an das neue Dasein, das er sich einrichten wollte, empfand er eine so heftige Freude, weil er sich bereits zu weit weg, oben auf dem Hang sah […] und dennoch nahe genug, um sich […] in seiner Einsamkeit bestätigen zu lassen.” (S. 16)
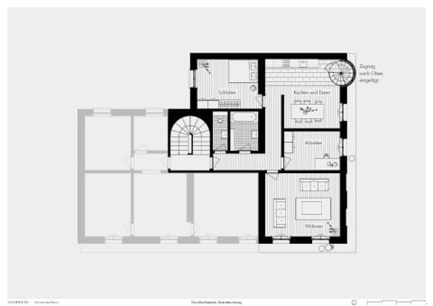
Im Entwurf bewohnt seine Dienerschaft die Bestandswohnung unter ihm, die über eine angedockte Wendeltreppe mit seinem Speisezimmer verbunden ist und so seine Versorgung ermöglicht. Die Räume des Protagonisten sind in ihrer Formensprache und Materialität erkennbar verschieden und bilden einzelne Abschnitte eines großen, in sich geschlossenen Gefüges, welches ganz bewusst nur über Dachfenster und einen Innenhof belichtet wird. Die freien Raumabfolgen funktionieren über eingesetzte Rahmen mit einer integrierten Bodenschwelle, die sich von der Materialität der eigentlichen Einzelteile abheben und in einen neuen Raum einleiten. Ziel ist es, dass jeder Raum ein ganz anderes Gefühl, eine ganz andere Atmosphäre auslöst. Insgesamt entsteht eine abstruse Innenwelt, die sich von Außenstehenden kaum ablesen lässt und der Imagination überlassen bleibt. Die Fassade besteht aus einzelnen, reflektierenden Zinkplatten, welche sich in ihrer Maßlichkeit auf die Formen anpassen und die Abgrenzung des Charakters durch Reflexion verstärken. Die auffällige, zweigeschossige Dachaufstockung in Holzleichtbauweise bildet zugleich eine abstrakte Adaption und Neuinterpretation der Pariser Mansardendächer.
Liebe Leserinnen und Leser, dieses fiktive Projekt dient als Gedankenexperiment um der architektonischen Frage der Isolation auf den Grund zu gehen. Basierend auf dem literarischen Werk aber auch meinen eigenen Erfahrungen im Home-Office entstand eine Überformung und schon fast distopisch-ironische Darstellung dieser. Gleichzeitig ist der Entwurf die architektonische Interpretation einer künstlichen Innenwelt, voller Geschichten und Ideen.
Auf Grundlage der fiktiven Architektur des 1884 verfassten Romans ‚Gegen den Strich‘ von Joris-Karl Huysmans entstand das Haus des Buchprotagonisten ‚Jean Floressas des Esseintes'. Sämtliche Begebenheiten wie Ort, Typologie und Raumprogramm, konnten dabei aus dem Roman abgeleitet und frei interpretiert werden. Als Misanthrop grenzt sich der Protagonist ‚Des Esseintes‘ immer weiter von der Gesellschaft ab. Aus mangelndem Interesse an seinen Mitmenschen sehnt er sich nach einer vollständigen und unwiderruflichen Isolation, die er auf dem Dach eines Bestandsgebäudes an einem großen Boulevard in Paris findet. Mitten im städtischen Kontext begibt er sich in eine selbst auferlegte Quarantäne, die seine Andersartigkeit unterstreichen soll. Sein museumartiges Dachgefüge beinhaltet so manches, was ihn von seiner vielverhassten Gesellschaft abgrenzen würde - als Devise gilt: Hauptsache nicht normal. Die architektonische Dekadenz und übertriebene Künstlichkeit versetzen ihn in eine Art artifiziellen Rausch. Realität und Imagination verschwimmen.
„Dachte er an das neue Dasein, das er sich einrichten wollte, empfand er eine so heftige Freude, weil er sich bereits zu weit weg, oben auf dem Hang sah […] und dennoch nahe genug, um sich […] in seiner Einsamkeit bestätigen zu lassen.” (S. 16)
Im Entwurf bewohnt seine Dienerschaft die Bestandswohnung unter ihm, die über eine angedockte Wendeltreppe mit seinem Speisezimmer verbunden ist und so seine Versorgung ermöglicht. Die Räume des Protagonisten sind in ihrer Formensprache und Materialität erkennbar verschieden und bilden einzelne Abschnitte eines großen, in sich geschlossenen Gefüges, welches ganz bewusst nur über Dachfenster und einen Innenhof belichtet wird. Die freien Raumabfolgen funktionieren über eingesetzte Rahmen mit einer integrierten Bodenschwelle, die sich von der Materialität der eigentlichen Einzelteile abheben und in einen neuen Raum einleiten. Ziel ist es, dass jeder Raum ein ganz anderes Gefühl, eine ganz andere Atmosphäre auslöst. Insgesamt entsteht eine abstruse Innenwelt, die sich von Außenstehenden kaum ablesen lässt und der Imagination überlassen bleibt. Die Fassade besteht aus einzelnen, reflektierenden Zinkplatten, welche sich in ihrer Maßlichkeit auf die Formen anpassen und die Abgrenzung des Charakters durch Reflexion verstärken. Die auffällige, zweigeschossige Dachaufstockung in Holzleichtbauweise bildet zugleich eine abstrakte Adaption und Neuinterpretation der Pariser Mansardendächer.
Liebe Leserinnen und Leser, dieses fiktive Projekt dient als Gedankenexperiment um der architektonischen Frage der Isolation auf den Grund zu gehen. Basierend auf dem literarischen Werk aber auch meinen eigenen Erfahrungen im Home-Office entstand eine Überformung und schon fast distopisch-ironische Darstellung dieser. Gleichzeitig ist der Entwurf die architektonische Interpretation einer künstlichen Innenwelt, voller Geschichten und Ideen.



