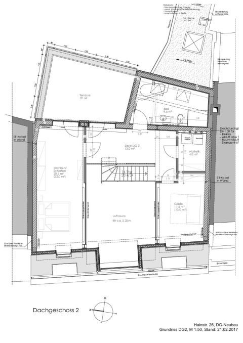
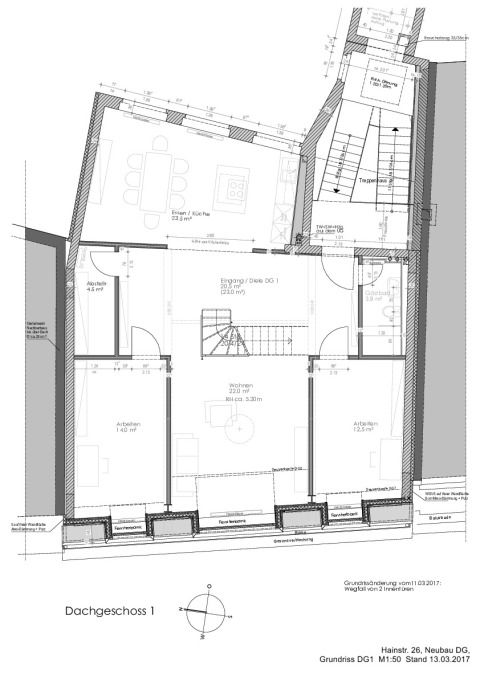
Hainstraße 26 aus. Hauptbestandteil dieser Bauaufgabe war die
Wiederherstellung der historischen Fassade und des verlorenen
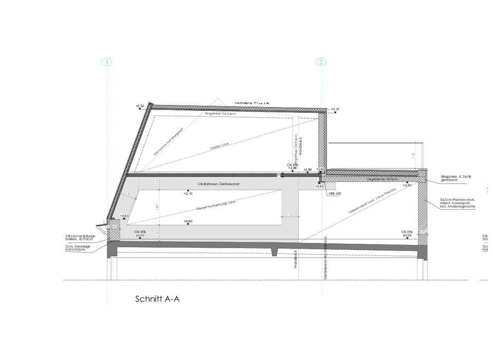
Dachaufbaus. Dabei wurde der Dachstuhl in seinen historischen
Kubaturen rekonstruiert, jedoch durch eine offene Stahlkonstruktion mit
Brettsperrholzplatten zeitgemäß ersetzt. Entstanden ist ein 2-geschossiges, lichtdurchflutetes Penthouse mit Dachterrasse. Der Grundriss folgt dem Prinzip eines
Atriumhauses, dass zur multifunktionalen Nutzung anregt. Das Atrium bietet Spielraum für Hausmusik, Atelier und Lesung den jetzigen Bewohnern, einem Schriftstellerehepaar.



