Die Scheune

Mühlstraße 23, 71576 Burgstetten

Diese Objektpräsentation wurde angelegt von: Streitberg Architektur


48.9305166 9.3701441 Mühlstraße 23, 71576 Burgstetten
Diese Objektpräsentation und die dazugehörenden Fotos wurden der Heinze GmbH im Rahmen des Heinze ArchitektenAWARDs 2020 zur Dokumentation beispielhafter Architektur zur Verfügung gestellt.

Objektkategorie

Wohnungsbauten

Objektart

Einzelhäuser

Art der Baumaßnahme

Sanierung / Modernisierung

Datum der Fertigstellung

04.2016

Anzahl der Vollgeschosse

1-geschossig

Raummaße und Flächen

Bruttorauminhalt
1.018 m³
Nutzfläche
300 m²
Wohnfläche
220 m²
Grundstücksgröße
175 m²
Grundstücksgröße
1.200 m²

Kosten

Gesamtkosten der Maßnahme (ohne Grundstück)
320.000 €

Verwendete Heizenergie

Primär
Holz
Sekundär
Holz

Energetische Kennwerte

Primärenergiebedarf ("Gesamtenergieeffizienz")
29,3 kWh/(m²a)
Heizenergieverbrauchswert
70,34 kWh/(m²a)
Stromverbrauchswert
4,6 kWh/(m²a)

Energiestandard

KfW-Effizienzhaus 55

Energiebedarf (Prozentuale Verteilung)

Heizung
65 %
Warmwasser
30 %
Beleuchtung
5 %

Tragwerkskonstruktion

Holz

OBJEKTBESCHREIBUNG 
Auf einem außergewöhnlichen Grundstück, parkähnlich und von den Gewässern Murr und Mühlkanal umspült, ergab sich die seltene Gelegenheit ein lange Zeit profan genutztes Gebäude aus seinem Nebengebäudedasein zu führen.

Als Dach für Mühlenmaschinen Ende der 1930er Jahre errichtet erhielt die Holzkonstruktion erst spät eine Hülle um als Oldtimerwerkstatt und später Lager für AMG-Rennsportteile zu dienen.

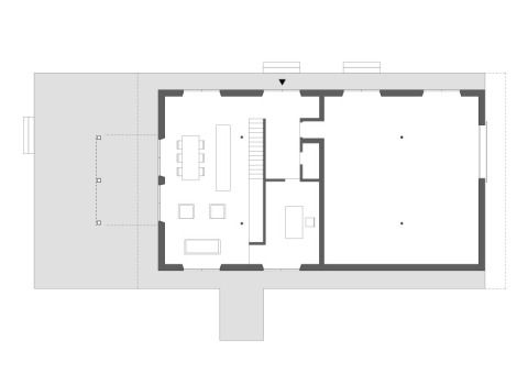
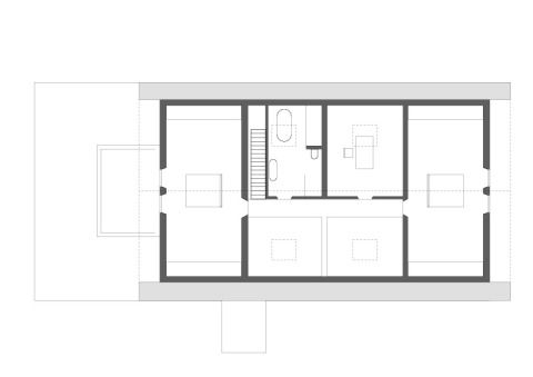
Fünf Tragachsen ergeben vier Felder mit je 40 qm Nutzfläche, eigentlich genug für eine Wohnnutzung. Nur zwangen ein fehlender Keller, zwei notwendige zusätzliche Büroräume für Freiberufler und Niesnutzeintragungen im Grundbuch zum Ausbau einer teils bereits vorhandenen Dachgeschossebene.

Die massive Fachwerkkonstruktion des Daches aus Dreigelenkstabzügen erlaubte früher den Einsatz einer Kranbahn, nicht jedoch die Lasten, die aus einer Wohnebene resultieren. Sie wurde mit eingestellten, selbsttragenden „Tischen“ aus Stahl realisiert und die inneren drei Fachwerke teilweise aufgelöst.

Die wichtigsten Überlegungen bezogen sich jedoch auf die Nähe des Gebäudes zu den Gewässern und dem damit verbundenen Hochwasserrisiko. Mit „Aufständern“ des Fußbodens um 40 cm und einer auf Abstand ringsumlaufenen, dicht verschweißten Cortenstahl-Schürze liegen nun alle Öffnungen deutlich über dem 50-jährlichen Hochwasser. Die Fußböden sind innen wie außen auf selbem Niveau – ein Umgang ums Gebäude trockenen Fußes.

Mit dieser Maßnahme erhielt der Baukörper auch einen klar formulierten Sockel, eine deutliche Grenze zur üppigen Natur und ein kräftigeres Auftreten gegenüber seiner Umgebung.
BESCHREIBUNG DER BESONDERHEITEN 
Andere gestalterische Maßnahmen konzentrieren sich auf Detaillösungen, die in der Baubranche aufgrund ihres Aufwandes oder fehlender Produkte unüblich sind: konische Fensterleibungen, wandbündige Elektroausstattung, rahmenlose Innentüren oder integrierte WC-Drücker ohne Platte. 

Die Summe dieser Detaillösungen und die handwerkliche Präzision hat zu einem wertigen Ausbau geführt, der visuell Respekt gegenüber dem Bestand vermittelt.

Die Fassade und die Außenbeläge bestehen aus einer Holzschalung unterschiedlich breiter, vorpatinierten Fichtebretter. Toleranzen des Bestandes von mehreren Zentimetern konnten so ausgeglichen werden. 

Die großen Dachüberstände erlaubten die außenbündige Montage der Eingangs-und Fenstertüren. Sie bestehen aus Eichenholz und schlagen bündig ein. 

Insgesamt wird damit Bezug auf die ehemalige Hülle der Oldtimer-Werkstatt hergestellt und von innen mit maximalen Glasformaten die Gartenanlage inszeniert.

VERBAUTE PRODUKTE

Elektro
Berker R Classic mit runden Abdeckungen

Sanitär
Drückerplatte, rund, eingespachtelt

Holz-Innentüren
Thieme Türen

PROJEKTBETEILIGTE FIRMEN UND PERSONEN

Architekt/Planer

Streitberg Architektur

Mühlstrasse 23

71576 Burgstetten

Tel. 0049 711 9082145


Architekturfotografie

Thomas Streitberg

Mühlstrasse 23

71576 Burgstetten

Tel. 0049 711 9082145


Bauleistung: Zimmerei, Ingenieurholzbau

Fa. Rikker GmbH

Daimlerstraße 15

71563 Affalterbach

Tel. 07144 / 8360-0


Bauleistung: Verglasung, Fensterbau

Jourdan Fensterbau

Im Unteren Ried 25

75382 Althengstett

ZEICHNUNGEN UND UNTERLAGEN

Diese Seite anderen empfehlen
       


DAS HEINZE-NETZWERK

 

IHRE PRODUKTINFORMATIONEN IM HEINZE-NETZWERK

10 Millionen Besucher pro Jahr

37 Millionen Seitenabrufe pro Jahr

5 Millionen Downloads pro Jahr

120.000 Kontaktanfragen proJahr



© ais-online.de 2025 - Objektreferenz - Die Scheune CO2 neutrale Website
433270542
12810240