Happyshop Berlin

Torstrasse 67, 10119 Berlin

Diese Objektpräsentation wurde angelegt von: Kay Fingerle Architektin


52.5293049 13.4078595 Torstrasse 67, 10119 Berlin
Diese Objektpräsentation und die dazugehörenden Fotos wurden der Heinze GmbH im Rahmen des Heinze ArchitektenAWARDs 2012 zur Dokumentation beispielhafter Architektur zur Verfügung gestellt.

Objektkategorie

Büro- und Verwaltungsbauten

Objektart

Sonstige Büro- und Verwaltungsbauten

Art der Baumaßnahme

Neubau

Datum der Fertigstellung

05.2011

Anzahl der Vollgeschosse

1-geschossig

Raummaße und Flächen

Bruttorauminhalt
574 m³
Nutzfläche
136 m²
Grundstücksgröße
155 m²
Grundstücksgröße
814 m²

Verwendete Heizenergie

Primär
Gas

Energetische Kennwerte

Primärenergiebedarf ("Gesamtenergieeffizienz")
56,00 kWh/(m²a)

Tragwerkskonstruktion

Holz

OBJEKTBESCHREIBUNG 
Aufgabe
Für den neu gegründeten Concept-Store „Happy Shop“ sollte ein geeigneter Laden in Berlin gefunden werden. Der Auftraggeber entschied sich, ein noch unbebautes Grundstück auf der Torstraße mit einem auf 4-8 Jahre angelegten temporären Pavillon zu bebauen.
Das Grundstück wird dadurch für die spätere Projektentwicklung aufgewertet.

Zwischennutzung
Das Projekt Happyshop steht im Kontext der Berlin-typischen Zwischennutzungen: der Shop wird weiterziehen...

Der Holzskelettbau, die Innenverkleidung aus Seekieferplatten, die hinterlüftete Vorhangfassade mit Bekleidung aus Faserzementplatten, sowie die Ladeneinrichtung aus 10 motorisierten Stahlrohrkonstruktionen und die Bodenplatte aus Betonfertigplatten können demontiert und an anderem Ort wieder verwendet werden.

Fassade
Die Fassade mit Ihrer gestreiften Aufgliederung ist auf die Bewegung der Passanten, sowie der Vorbeigehenden als auch der Vorbeifahrenden konzipiert.
Durch den sich ändernden Blickwinkel auf das Gebäude scheint sich dieses aus jeder Position zu verändern.
Wie eine kinetische Plastik ihre Erscheinung erst durch die Bewegung erhält, so erhält der Laden erst sein Erscheinungsbild durch das Passieren.

Lage
Auf der Torstrasse / Ecke Schönhauser Allee entwickelt sich eine bisherige Randlage zwischen Mitte und Prenzlauer Berg langsam zu einem neuen Quartier. Neue Architektur entsteht, lange brachliegende Baulücken werden langsam wieder aufgefüllt - neues urbanes Leben siedelt sich an. Trotz all der zu Recht viel diskutierten Verdrängungsprozesse ist Stadt ein ständiger Prozess von Veränderungen und Wandel.
BESCHREIBUNG DER BESONDERHEITEN 
Funktionen
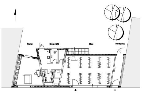
Der Pavillon besteht aus 3 Gebäudekörpern unterschiedlicher Höhen, welche die Bereiche
Verkauf, Atelier und Service beherbergen.
Der größte und höchste Raum ist dem Verkauf gewidmet, bei einer Höhe von 5.80 m kann die gesamte Kleideraufhängung mit Elektromotoren unter die Decke gefahren werden, damit im unteren Bereich Veranstaltungen wie Fashionshows, Ausstellungen, Tanzaufführungen, Parties mit Gästen stattfinden können.
Der Verkaufsraum ist im unteren Bereich grau gestrichen, im oberen Bereich und an der Decke ist er mit Seekieferplatten verkleidet. Die Materialgrenze ist gleichzeitig der Abschluss der hoch gefahrenen Kleiderstangen. Die Schichtung des Raumes stellt den Wechsel von Bühne zu „Bühnenhaus“ dar.
Der grüne Servicebereich befindet sich im kleinsten Gebäudeteil mit einer Raumhöhe von 2.40 m und hier befinden sich eine kleine Küche, ein WC und ein Lager.
Im Atelier, dem violetten Bereich, gibt es die Möglichkeit, Änderungen und Anpassungen vorzunehmen; hier werden die Veranstaltungen konzipiert und geplant.
Aus dem blauen Durchgang gelangt man von der Strasse aus direkt in den Hof, ein weiterer Zugang zum Hof ist von der Küche aus möglich.

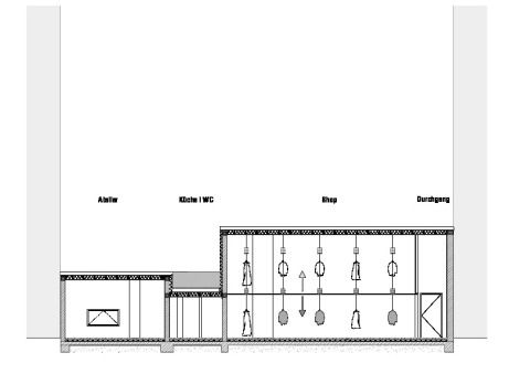
Der Verkaufsraum als Bühne
Um die Ladenfläche optimal nutzen zu können, sollte das Inventar leicht zu entfernen sein, um eine mehrfache Bespielung der Ladenfläche, als Präsentationsfläche, Modenshow, Fashionparty und Verkaufsraum zu ermöglichen.
Somit wurde der Laden, wie eine Theaterbühne entworfen: in dem sechs Meter hohen Raum hängt alles Inventar an Traversen, die sich wie in einem
Theaterschnürboden hinauf und herunter fahren lassen. Durch verschiedene Stellungen der Traversen lassen sich unzählige Raumkonfigurationen und
mögliche Raumszenarien herstellen.

Per Knopfdruck setzt sich alles in Bewegung: der Laden ist immer ein anderer und doch immer an derselben Stelle zu finden.
Das Spektakel kann beginnen.

VERBAUTE PRODUKTE

Fassaden
Fassadentafel Pictura

VELFAC
Fenster
VELFAC 200i

Xenon Architectural Lighting
Leuchten

PROJEKTBETEILIGTE FIRMEN UND PERSONEN

Architekt/Planer

Kay Fingerle Architektin

Linienstrasse 80

10119 Berlin

Tel. +49(0)30 28042161

Fachplanung: Tragwerksplanung

stabil labil / Ingenieurbüro Leipold

Dunckerstrasse 63

10439 Berlin


Fachplanung: Brandschutz

Christian Leibenatus

Inselstrasse 1

10179 Berlin


Bauleistung: Fassade

Zimmerei Fingerle

Rödelstrasse 12

10318 Berlin

Tel. 0173 68 26 948


Bauleistung: Elektroinstallation

Klötzing Elektro und Wärme GmbH

Dorotheastraße 7

10318 Berlin

Tel. 030 5096 90-0


Bauleistung: Maler, Lackierer

Wolfgang Lüttgens Malereibetriebe GmbH & Co. KG

Akazienallee 28

14050 Berlin

Tel. 300 679 - 26


Bauleistung: Tischler

Thomas Klode

Höherweg 333

40231 Düsseldorf

Tel. 0211/651020


Bauleistung: Zimmerei, Ingenieurholzbau

Zimmerei Fingerle

Rödelstrasse 12

10318 Berlin

Tel. Tel. 0173 68 26 948

Diese Seite anderen empfehlen
       


DAS HEINZE-NETZWERK

 

IHRE PRODUKTINFORMATIONEN IM HEINZE-NETZWERK

10 Millionen Besucher pro Jahr

37 Millionen Seitenabrufe pro Jahr

5 Millionen Downloads pro Jahr

120.000 Kontaktanfragen proJahr



© ais-online.de 2025 - Objektreferenz - Happyshop Berlin CO2 neutrale Website
436478813
12516159