Haus B Landsberg

Lechanger 20, 86899 Landsberg am Lech

Diese Objektpräsentation wurde angelegt von: Kehrbaum Architekten


48.0583209 10.8778839 Lechanger 20, 86899 Landsberg am Lech
  mehr  
Diese Objektpräsentation und die dazugehörenden Fotos wurden der Heinze GmbH im Rahmen des Heinze ArchitektenAWARDs 2014 zur Dokumentation beispielhafter Architektur zur Verfügung gestellt.

Objektkategorie

Wohnungsbauten

Objektart

Sonstige Wohnungsbauten

Art der Baumaßnahme

Neubau

Datum der Fertigstellung

06.2012

Anzahl der Vollgeschosse

2-geschossig

Raummaße und Flächen

Bruttorauminhalt
4.022 m³
Nutzfläche
860 m²
Wohnfläche
580 m²
Grundstücksgröße
1.206 m²
Grundstücksgröße
188.420 m²

Verwendete Heizenergie

Primär
Fernwärme
Sekundär
Solarthermie

Energetische Kennwerte

Primärenergiebedarf ("Gesamtenergieeffizienz")
66,9 kWh/(m²a)
Heizenergieverbrauchswert
24,2 kWh/(m²a)
Stromverbrauchswert
1,8 kWh/(m²a)

Energiestandard

Niedrigenergiehaus

Tragwerkskonstruktion

Stahlbeton

OBJEKTBESCHREIBUNG 
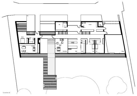
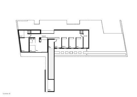
Über Abweichungen zum Bebauungsplan und intensiven Gesprächen mit der Stadtverwaltung konnte diese außergewöhnliche Lösung eines Mehrgenerationenhauses, Haupthaus mit Einliegerwohnung, realisiert werden.
BESCHREIBUNG DER BESONDERHEITEN 
Das Material Beton kommt hier mit edler Oberfläche zur Geltung. Eingefärbt und mit Schüttstoffen in Kalk zeigt sich die Oberfläche nach dem „Stocken“ samten und natürlich. Auf den ersten Blick scheint das Haus aus einem Natursteinblock geschnitten. Intelligente Lichtführung am Tag und ein szenenhaftes Lichtkonzept für die Nacht macht das Haus zusätzlich reizvoll. Die offenen Raumfolgen verbinden drei Generationen. An dem gemeinsamen Treffpunkt Essen/Küche und Wohngalerie schließen die Masterräume der Eltern, die Apartments der Kinder und die Suite der Großmutter an.

VERBAUTE PRODUKTE

Fa. Wipfler, 86441Wörleschwang
Fenster
Eigenbau

PROJEKTBETEILIGTE FIRMEN UND PERSONEN

Architekt/Planer

Kehrbaum Architekten

Leopoldstr. 128

80802 München

Tel. +49 89 4523598-0

Architekturfotografie

Dagmar Flex

St.-Cosmas-Straße 12

87660 Kaufbeuren

Tel. 08341-9663222


Bauleistung: Tischler

Eber Designtüren GmbH

Reuthebogen 14

86720 Nördlingen

Tel. +49 9081 4601

Diese Seite anderen empfehlen
       


DAS HEINZE-NETZWERK

 

IHRE PRODUKTINFORMATIONEN IM HEINZE-NETZWERK

10 Millionen Besucher pro Jahr

37 Millionen Seitenabrufe pro Jahr

5 Millionen Downloads pro Jahr

120.000 Kontaktanfragen proJahr



© ais-online.de 2025 - Objektreferenz - Haus B Landsberg CO2 neutrale Website
443457348
12555096