Haus D

Niederersgasse 34, 88339 Bad Waldsee

Diese Objektpräsentation wurde angelegt von: spaeth architekten


47.9214356 9.7395174 Niederersgasse 34, 88339 Bad Waldsee
  mehr  
Diese Objektpräsentation und die dazugehörenden Fotos wurden der Heinze GmbH im Rahmen des Heinze ArchitektenAWARDs 2010 zur Dokumentation beispielhafter Architektur zur Verfügung gestellt.

Objektkategorie

Wohnungsbauten

Objektart

Einzelhäuser

Art der Baumaßnahme

Neubau

Datum der Fertigstellung

10.2008

Anzahl der Vollgeschosse

2-geschossig

Raummaße und Flächen

Bruttorauminhalt
870 m³
Nutzfläche
73 m²
Wohnfläche
147 m²
Grundstücksgröße
560 m²

Kosten

Gesamtkosten der Maßnahme (ohne Grundstück)
281.000 €

Verwendete Heizenergie

Primär
Holz
Sekundär
Solarthermie

Energiestandard

KfW-Effizienzhaus 60

Tragwerkskonstruktion

Ziegelmauerwerk

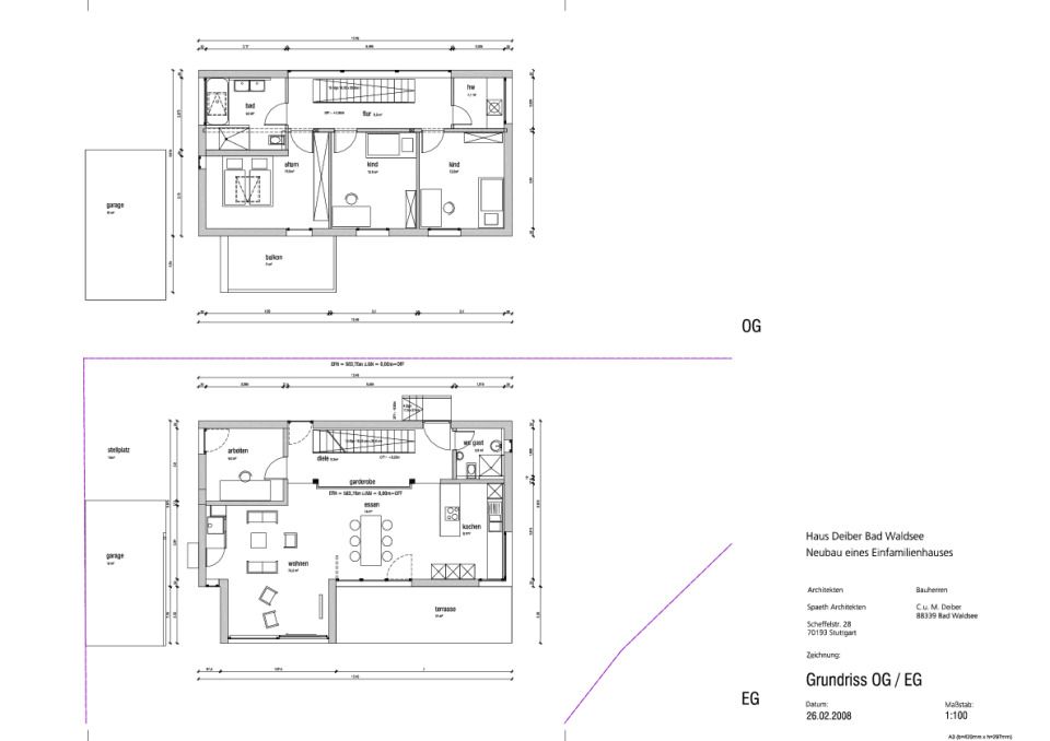
OBJEKTBESCHREIBUNG 
Das kleinstädtische, fast ländliche Milieu eines Kurortes in Oberschwaben bildet den Rahmen für das Haus D. Die moderne Architektur integriert sich selbstbewusst in die vorhandene Struktur der „Häuslesbauer“. Das klassische, die Umgebung prägende Satteldach wird durch eine Asymmetrie spannungsreich interpretiert und in präzisen Details ausformuliert. Die schlanke Proportion unterstützt die schlichte Eleganz des Baukörpers und unterstreicht damit den gestalterischen Anspruch der Bauherren gegenüber der bestehende Bebauung.

Zum öffentlichen nördlichen Straßenraum hin grenzt sich das Gebäude mit einer eher geschlossenen Fassade ab. Wenige, präzise Einschnitte ermöglichen Ausblicke in die Nachbarschaft. Zum südlichen privaten Garten öffnet sich die Fassade mit großzügiger Transparenz. Der Garten wird zum erweiterten Wohnzimmer. Das offene Raumkonzept transformiert die konventionelle Raumzellenaufteilung und gliedert das Haus in eine schmale nördliche Zone und in eine breitere südliche Zone. Der nördliche Teil, zur Straße gewandt, dient als Nebenraum- und Verkehrszone; der breite, südliche Teil ist dem Garten zugewandt und beherbergt die Wohnbereiche. Gezielt gesetzte Öffnungen lassen die Umgebung wie lebendige Gemälde auf der weißen Wand erscheinen. Auch das Kaminfeuer im Wohnbereich brennt als lebhaftes Bild an der Wand. Wenige klassische Materialien prägen das Haus.

Die Außenwände sind als moderne hoch wärmedämmende ein-schalige Ziegelmauerwände hergestellt und in schlichtem weiß verputzt. Das Dach ist dem Farbkonzept entsprechend mit grauen Tonziegeln gedeckt und im Fugenschnitt geordnet. Die asymmetrische Holzkonstruktion bildet mit dem schmalen Dachrand eine moderne Interpretation des ortsüblichen Dachüberstandes. Die dunkelgrauen Fensterprofile präzisieren die Schnittstellen im weißen Mauerwerk. Ihre Farbigkeit wird von den Küchenoberflächen und den Treppen- und Stahlkonstruktionen aufgenommen Das warme Dunkelbraun des Parkettbodens der Wohnbereiche spiegelt sich an der zentralen Mittelwand des Wohn-Essbereichs in einem erdigen Wandton und bildet einen farbigen Akzent.

PROJEKTBETEILIGTE FIRMEN UND PERSONEN

Architekt/Planer

spaeth architekten

Mengstr. 38

23552 Lübeck

Tel. +49 451 20205980

ZEICHNUNGEN UND UNTERLAGEN

Diese Seite anderen empfehlen
       


DAS HEINZE-NETZWERK

 

IHRE PRODUKTINFORMATIONEN IM HEINZE-NETZWERK

10 Millionen Besucher pro Jahr

37 Millionen Seitenabrufe pro Jahr

5 Millionen Downloads pro Jahr

120.000 Kontaktanfragen proJahr



© ais-online.de 2025 - Objektreferenz - Haus D CO2 neutrale Website
436487913
9641173