An einer Hangsituation mit weitem Seeblick zur Morgensonne orientiert, schwebt das Haus als windmühlenflügelartig geformtes Sandwich aufgehängt an geerdete durchdringenden rauhe Natursteinvolumen .
Man betritt das Haus von der oberen Ebene über eine 1 ½ geschossige Eingangshalle… ein Westlichtfenster über der zur Straße vollständig geschlossenen Front markiert als Hochpunkt den Zugang. Nachts ist eine Artischocken Leuchte von Poul Henningsen magischer Anziehungspunkt von Außen
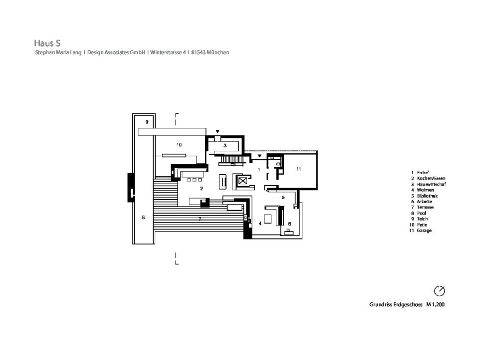
Nach Osten eröffnet sich der 1 Million Dollar Blick des intimeren Wohnzimmers und die westlich angrenzende großzügige Wohnraumküche. Deckenhohe Sky Frame Glasanlagen geben das durch einen zentralen Kaminblock geteilte See und Bergpanorama frei.
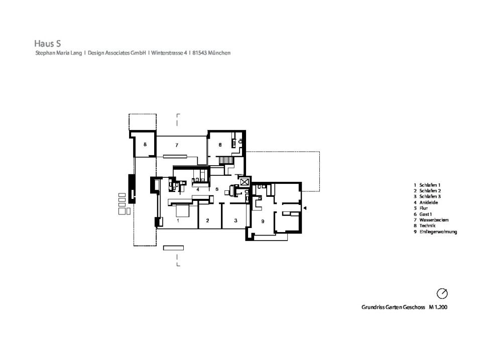
Während magische Raumfluss und grenzenlose Blicke das Obergeschoss bestimmen wird das Untergeschoss mit den direkt gartenorientierten Schlafzimmern und den zum Tiefhof belichteten Bädern zum privateren Rückzugsbereich des Ehepaar und ihrer erwachsenen Töchter.
Der entgrenzte Raum und der subtile Übergang zwischen Innen und Außen, das Spiel zwischen Offen und Geschlossen, von Weite und Geborgenheit entsprechen der Lebens und Arbeitswelt der weitgereisten Bauherrn. Raumhöhe Möbeleinbauten mit 7 mm Schattenfuge zum Boden und Decke nehmen alle Innentüren in Paneel artigen Vertiefungen oder SchiebtürTaschen auf und unterstützen im offenen Zustand das Raumkontinuum.
Auf der Ferienhaus Charakter verströmenden Lifestyle Ebene geht eine großzügige Terrasse in die flache spiegelnde Wasserfläche der täglich genutzten auskragenden Pools über. Diese und der reflekting Pool im rückwärtigen Tiefhof sind Teil einer architektonischen Inszenierung a la Neutra, die den Bewohner die Landschaft immer wieder neu erleben läßt.
Nachts bekommt das Haus ein 2. Gesicht durch eine weitgehend LED Band basierte Beleuchtung, die immer aus architektonischen Rücksprüngen in Wand und Decke entwickelt ist.



