Modernisierung Atriumgebäude Sparkasse Krefeld

Neue Linner Str. 81, 47798 Krefeld

Diese Objektpräsentation wurde angelegt von: ACMS Architekten GmbH


51.3328136 6.5676094 Neue Linner Str. 81, 47798 Krefeld
Diese Objektpräsentation und die dazugehörenden Fotos wurden der Heinze GmbH im Rahmen des Heinze ArchitektenAWARDs 2015 zur Dokumentation beispielhafter Architektur zur Verfügung gestellt.

Objektkategorie

Büro- und Verwaltungsbauten

Objektart

Banken

Art der Baumaßnahme

Sanierung / Modernisierung

Datum der Fertigstellung

10.2012

Anzahl der Vollgeschosse

6- bis 10-geschossig

Raummaße und Flächen

Bruttorauminhalt
75.464 m³
Grundstücksgröße
23.869 m²

Kosten

Gesamtkosten der Maßnahme (ohne Grundstück)
30.900.000 €

Tragwerkskonstruktion

Stahlbeton

OBJEKTBESCHREIBUNG 
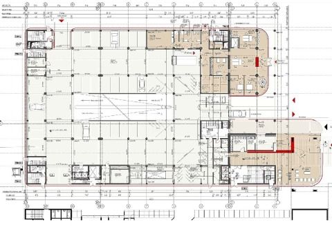
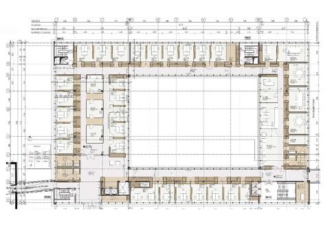
Im Büro der Zukunft steht der Mensch wieder im Mittelpunkt des Organisationsprozesses. Er kann gemäß den Anforderungen aus seinen Tätigkeitsfeldern zwischen Rückzugs-, Besprechungs- und Teamräumen wählen. Die baulichen und technischen Maßnahmen sind dabei so zu wählen, dass alle Einteilungen des „Reversiblen Büros“ und des „Flex Office“ möglich sind. Dieser Ansatz ist mit der Modernisierung der Sparkasse Krefeld umgesetzt. Mit wirtschaftlichen Ausbaurastern konnte die Belegungskapazität im Vergleich zum Bestand um über 31% erhöht und gleichzeitig die Qualität der Arbeitsplätze maßgeblich verbessert werden. Freigestellte Raumteiler nehmen die bestehende Tragstruktur und die Haustechnik auf, dienen als Schränke und lassen Sichtachsen durch die Büroeinheiten frei. Nutzerspezifisch wurden hier Zellenbüros kombiniert mit Sonder- und Gemeinschaftsflächen, die 40 Prozent des Gesamtflächenanteils einnehmen.

Die Funktionsbereiche im Gebäudesockel und der neuformulierte Eingang wurden in städtebaulich prägnanter Weise an die Platzkanten des vorgelagerten Luisenplatzes angeordnet. Die äußere Gestaltung wird im Sockelbereich durch ein umlaufendes perforiertes Fassadenband geprägt. Die Obergeschosse sind charakterisiert durch die Überlagerung des übernommenen Fassadenrasters und des neuen Innenausbausystems. Der Fensterflächenanteil wurde durch Kürzen der Brüstungen vergrößert und unter Berücksichtigung der Optimierung von Tageslichtautonomie, Transmissionswärmeverlust sowie sommerlichem Wärmeschutz auf Basis der durchgeführten thermischen Simulationen festgelegt.
BESCHREIBUNG DER BESONDERHEITEN 
In der Planungsphase wurden standortspezifische Möglichkeiten zur Energieversorgung untersucht, ob mittels regenerativer Energiequellen oder einer Energieüberschussnutzung aus angrenzenden Liegenschaften ein dezentraler Energieverbund realisiert werden kann. Im Atriumgebäude der Sparkasse Krefeld wird zur Kühlung der Sonderbereiche die im Sommer überschüssige, vorhandene Energie der Fernwärme genutzt. So kann die aus kommunaler Müllverbrennung ganzjährig entstehende Energie auch im Sommer eingesetzt werden. Durch die Auswahl aufeinander abgestimmter passiver und aktiver Kühl- und Heizkomponenten sowie einer Raumlufttechnik mit hocheffizienter Wärmerückgewinnung konnte die nach EN 15251 höchste Komfortklasse 1 realisiert werden bei gleichzeitiger Unterschreitung der Werte der zur Bauzeit geltenden Energieeinsparverordnung um 25%. Grundlegende Maßnahmen hierfür sind die Optimierung des Fensterflächenanteils, der Einsatz intelligenter, Tageslicht lenkender Sonnenschutzsysteme und eine das Gesamtsystem aus Sonnenschutz, Lüftung und Beleuchtung steuernde Gebäudetechnik .

VERBAUTE PRODUKTE

Moradelli
Metal Design
Moradelli Metal Design

PROJEKTBETEILIGTE FIRMEN UND PERSONEN

Architekt/Planer

ACMS Architekten GmbH

Friedrich-Ebert-Str. 55

42103 Wuppertal

Tel. +49 202 445 71-00

Bauleistung: Rohbau

Matthias Thelen Bauunternehmung GmbH

Am Vaetsbruch 15

47906 Kempen-Tönisberg


Bauleistung: Tischler

Knoblauch Productions GmbH

Zeppelinstr. 8-10

88677 Markdorf


Architekturfotografie

Steinprinz Fotodesign

Arnheimer Straße 120

40489 Düsseldorf

Tel. +49 171 5475082

ZEICHNUNGEN UND UNTERLAGEN

Diese Seite anderen empfehlen
       


DAS HEINZE-NETZWERK

 

IHRE PRODUKTINFORMATIONEN IM HEINZE-NETZWERK

10 Millionen Besucher pro Jahr

37 Millionen Seitenabrufe pro Jahr

5 Millionen Downloads pro Jahr

120.000 Kontaktanfragen proJahr



© ais-online.de 2025 - Objektreferenz - Modernisierung Atriumgebäude Sparkasse Krefeld CO2 neutrale Website
436656257
12608434