Mit einem einzigartigen Konzept aus einer Mischung vonEinzelhandel und Gastronomie betritt die neue Schrannenhalle in München neues Terrain. Mit der Möglichkeit, die verschiedenen Marktstände zu umlaufen, wird dem Kunden ein außergewöhnliches Produkterlebnis geboten.
Die Aufgabenstellung bestand darin, ein Gesamtkonzept zuentwickeln, in dem die Ware im Vordergrund steht und der Charme der Halle erlebbar bleibt. Materialien und Farben nehmen sich zurück, betonen das Natürliche und bieten für die Waren eine perfekte Umgebung. Eiche und Nero Assoluto stehen für Natürlichkeit, Ehrlichkeit und Beständigkeit, klare Formen und Linien bestimmen das Bild. So ergibt sich ein stimmiges Gesamtbild und die Halle wirkt wie aus einem Guss.
Die Materialien behalten ihre natürliche Ausstrahlung:Eiche, gebürstet und geölt, gezunderter Stahl - matt lackiert bzw. geölt, optische Lichtpunkte durch die Verwendung von weißen Fliesen sowie einheitliche dunkle Schieferlacktafeln für die Preisauszeichnung und Produktinformationen
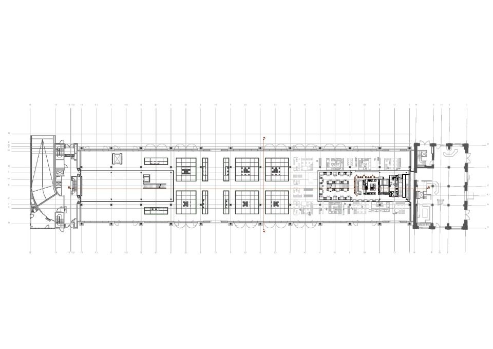
Die Marktstände
Im Zentrum der Halle befinden sich 12 Marktstände, die vonAnbietern hochwertiger Lebensmitteln betrieben werden. Entwickelt wurde ein Marktstand, der eine Aufteilung in vier Module zulässt sowie sechs Sonderstände im Randbereich und im Bereich der Durchwegung. Diese Mieteinheiten können kombiniert und zusammengefügt oder autark betrieben werden.
Die Abmessungen des Kranzes, der Beleuchtungs- undVerschattungseinheiten beinhaltet, definieren als „Footprint“ die Umrisse des Standes. Um die Natürlichkeit des Stahles darzustellen, wird dieser als Schwarzstahl ausgeführt. Die innere Struktur nimmt die Form eines Windrades auf und generiert somit Nischen, die für Installationen genutzt werden.
Die asymmetrische Anordnung der unterschiedlichenMarktstände ermöglicht verschiedene Standgrößen und Nutzungen. Die Kernzone wird umgeben von Modulen, die je nach Produktpalette und Bedürfnis kombiniert werden können und eine Nutzung von der Warenpräsentation bis zur Kühlvitrine zulassen. So können vielfältige Variationen erfüllt und die Durchwegung und Umwanderung der Marktstände erzielt werden.
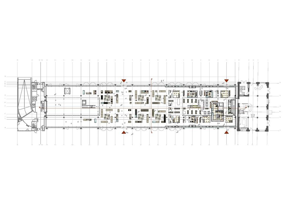
Käfer - Marktstand und Restaurant
Der Käfer-Bereich in der Schrannenhalle ist eine gekonnte Mischungaus Delikatessenmarkt und Degustationseinheiten mit unterschiedlichen Sitzgelegenheiten. Hier können edle Produkte im Vorbeischlendern entdeckt werden. Material und Gestaltung für den Bereich Käfer entwickeln sich aus Optik der Markstände weiter und werden durch eigenständige neue Materialien wie z.B. Weide und Zementfliesen ergänzt. Im Marktrestaurant werden die Speisen frisch zubereitet. Unterschiedliche Sitzmöglichkeiten laden zum Verweilen ein: an der Bar mit Blick in die Küche, am Geländer mit Blick auf das bunte Treiben in der Markthalle oder in Nischen - abgeschirmt vom Trubel. Im Bereich der Theken wird das Thema der Form der Marktstände fortgeführt. Hier hängen über den Theken rechteckige Weidenlüster, die den Arbeitsbereich genauso wie die Präsentationsflächen ausleuchten. Ein eigens angefertigter 4x4 Meter großer Lüster aus Weide beleuchtet das Restaurant auf der Empore. Pendelleuchten setzen Akzente und erzeugen atmosphärisches Licht.



