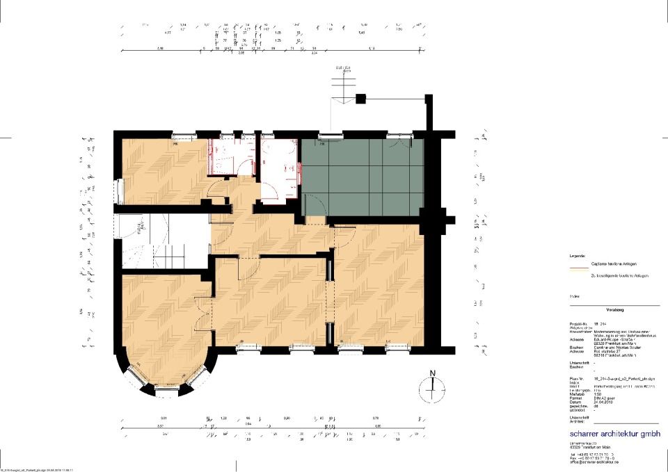
In der Wohnung im Hochparterre einer dreigeschossigen Mehrfamilien-Doppelwohnhaushälfte mit Unterkellerung wurde für eine junge Familie eine Umbau- und Modernisierungsmaßnahme durchgeführt.
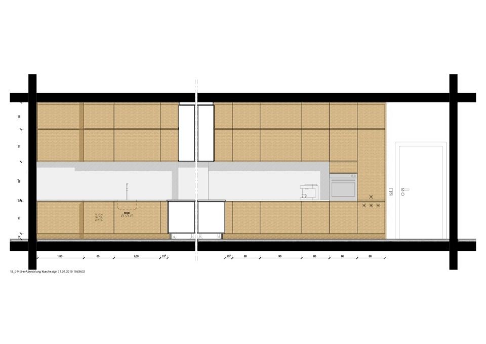
Es wurden zwei kleine Bäder – eines mit Badewanne, eines mit bodenebener Dusche – hergestellt und die Küche in ein anderes Zimmer zum Terrassenausgang verlegt. Zudem wurden Decken-, Wand- und Türoberflächen überholt und alle elektrischen Leitungen erneuert.
Ferner wurde der Fußbodenaufbau ab Rohdecke komplett feuerbeständig mit einer Trockenestrichkonstruktion erneuert. Aufenthaltsräume und Flure erhielten ein geöltes Eiche-Parkett in Fischgrätenmuster, welches kontinuierlich durch alle diese Räume verläuft. Abweichend von der traditionellen Verlegerichtung verläuft dieses nicht vertikal, sondern diagonal zum einfallenden Licht.
Alle Bäder sowie die Küche wurden mit großformatigen Fliesen ausgestattet, bei denen die Umkehr des Farbschemas beide Bäder dezent voneinander absetzt – das Bad mit Dusche hat dunkle Wandfliesen und hellere Bodenfliesen, während dies im Bad mit Wanne umgekehrt ist.
Es wurden zwei kleine Bäder – eines mit Badewanne, eines mit bodenebener Dusche – hergestellt und die Küche in ein anderes Zimmer zum Terrassenausgang verlegt. Zudem wurden Decken-, Wand- und Türoberflächen überholt und alle elektrischen Leitungen erneuert.
Ferner wurde der Fußbodenaufbau ab Rohdecke komplett feuerbeständig mit einer Trockenestrichkonstruktion erneuert. Aufenthaltsräume und Flure erhielten ein geöltes Eiche-Parkett in Fischgrätenmuster, welches kontinuierlich durch alle diese Räume verläuft. Abweichend von der traditionellen Verlegerichtung verläuft dieses nicht vertikal, sondern diagonal zum einfallenden Licht.
Alle Bäder sowie die Küche wurden mit großformatigen Fliesen ausgestattet, bei denen die Umkehr des Farbschemas beide Bäder dezent voneinander absetzt – das Bad mit Dusche hat dunkle Wandfliesen und hellere Bodenfliesen, während dies im Bad mit Wanne umgekehrt ist.