Die hochbauliche Planung obliegt den Architekturbüros LRW Architekten (Häuser 1-4 +8, Lph. 1-8 und Häuser 6-7 + 9 LPH 5-8) und bof architekten (Häuser 5-7 + 9 + TG, LPH 1-4).
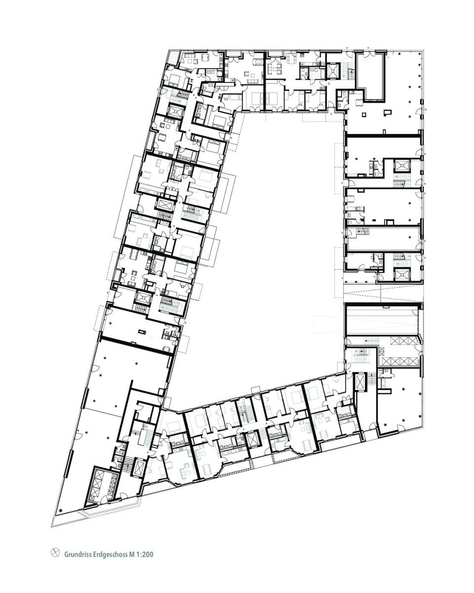
Auf einer gemeinsamen Tiefgarage mit angrenzenden Keller- und Haustechnikräumen entstand eine geschlossene Blockrandbebauung mit 5-7-geschossigen Häusern. Von den 145 Mietwohnungen sind 120 IFB-gefördert und 25 frei finanziert.
Im der hohen Erdgeschosszone befinden sich neben Wohnungen auch 6 Gewerbeeinheiten. Die Zugänge zu den Treppenhäusern sind von der Straße und vom Hof aus barrierefrei.
Der Innenhof ist von der Harkortstraße aus direkt zugänglich und bietet Spielflächen für Kinder.
Alle Wohnungen sind mit einem Balkon zur Straße und – bis auf die Eckwohnungen in Haus 1 und 2 – mit einem weiteren Balkon bzw. einer Terrasse zum Innenhof ausgestattet.
In der Gestaltung der Fassaden ist die Gestaltung durch zwei Architekturbüros konzeptionell ablesbar: Die Gebäude der Altoba zeigen sich in verschiedenen, hellen Verblendsteinfarben, wodurch die einzelnen Häuser erkennbar sind. Vor- und Rücksprünge, Faschen und Loggien strukturieren die Fassade und verleihen ihr Plastizität.
Die Gebäude der BVE zeigen sich in einheitlichem Verblendstein, gegliedert durch eine horizontale und vertikale Rahmung. Aufweitende Loggien bereichern das Fassadenspiel.



